
1 / 16
Beschreibung
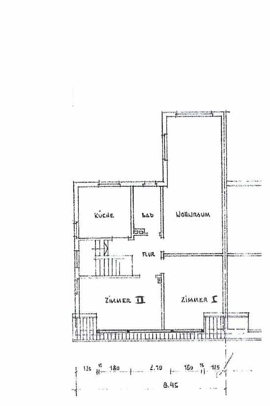
Einfamilien-Doppelhaushälfte mit Einliegerwohnung sowie mit einer Pkw-Garage mit Anbau in Fronhofweg 42, 50321 Brühl - Vochem,
Lage & Flurstücke
Keine Koordinaten verfügbar
Frohnhofweg 42, 50321 Brühl, Vochem, Nordrhein-Westfalen
Kostenrechner
Kostenrechner für Zwangsversteigerungen
Objektdaten
Verkehrswert:514.000 €
Bundesland:Nordrhein-Westfalen
Grunderwerbsteuer:6,5 %
Ihre Eingaben
€
€
Rechtlicher Hinweis: Diese Berechnung dient ausschließlich der Orientierung und stellt keine rechtliche, steuerliche oder finanzielle Beratung dar. Alle Angaben erfolgen ohne Gewähr. Für eine verbindliche Auskunft wenden Sie sich bitte an einen Rechtsanwalt, Steuerberater oder Ihre Bank.