
1 / 29
Beschreibung
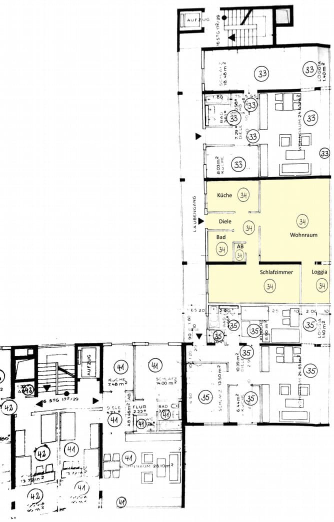
Bei dem Bewertungsobjekt handelt es sich um eine rund 64 m² große Eigentumswohnung in einem Wohn- und Geschäftshaus mit gewerblicher Nutzung im Unter- und Erdgeschoss und Wohnungen in den darüber liegenden Geschossen, Hans-Böckler-Straße 147-153/Röttgen 141-175 in Wuppertel Elberfeld und um einen Garagenstellplatz in einem 4-geschossigen Parkhaus Hans-Böckler-Straße/Röttgen.
Lage & Flurstücke
Keine Koordinaten verfügbar
Hans-Böckler-Straße 147, 149, 151, 153, Röttgen 141, 143, 143a, 145, 145a, 147,149, 151, 153, 153a, 155, 157, 159, 161, 163, 165, 167, 169, 171, 173, 175, 42109 Wuppertal, Elberfeld, Nordrhein-Westfalen
Kostenrechner
Kostenrechner für Zwangsversteigerungen
Objektdaten
Verkehrswert:82.000 €
Bundesland:Nordrhein-Westfalen
Grunderwerbsteuer:6,5 %
Ihre Eingaben
€
€
Rechtlicher Hinweis: Diese Berechnung dient ausschließlich der Orientierung und stellt keine rechtliche, steuerliche oder finanzielle Beratung dar. Alle Angaben erfolgen ohne Gewähr. Für eine verbindliche Auskunft wenden Sie sich bitte an einen Rechtsanwalt, Steuerberater oder Ihre Bank.