
Beschreibung
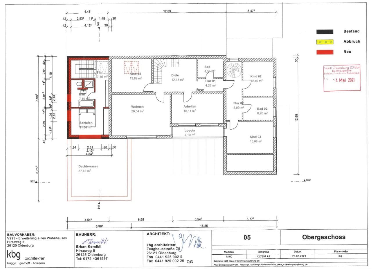
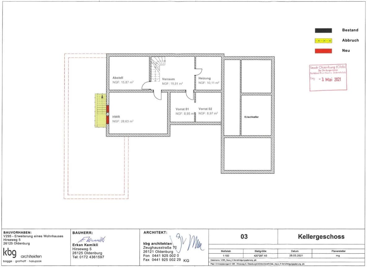
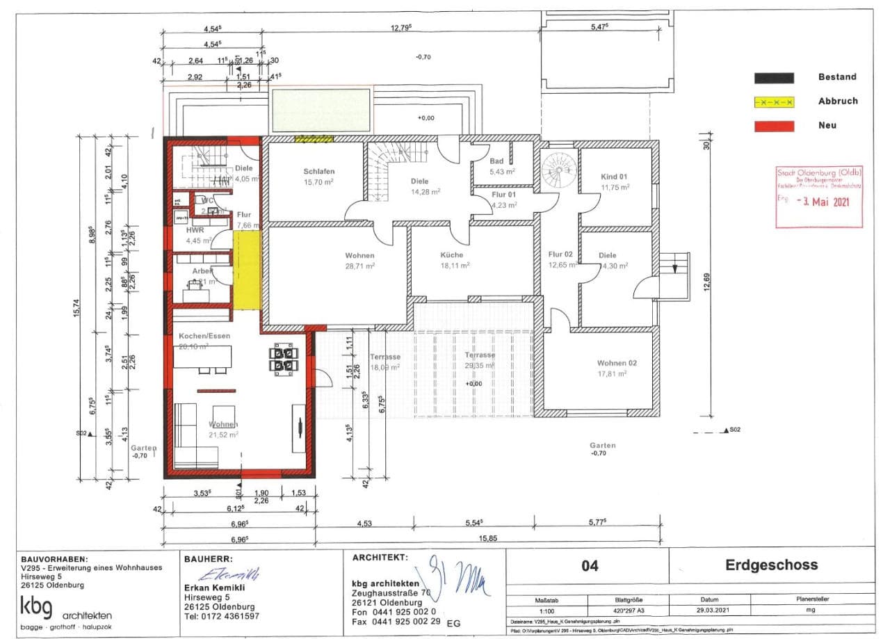
Mit einem eingeschossigen Mehrfamilienwohnhaus mit ausgebautem Dachgeschoss sowie einer eingeschossigen Doppelgarage und einem hölzernen Gartenhaus bebautes Grundstück in 26125 Oldenburg (Oldb) / Stadtteil Ofenerdiek, Hirseweg 5. Baujahr des Wohnhauses (laut Sachverständigengutachten): Haupthaus: 1972; Straßenseitiger Anbau: unbekannt; Rückwärtiger Anbau: 2021 Aufteilung des Wohnhauses (laut Sachverständigengutachten): I. Kellergeschoss (KG): Teilweise unterkellert a) Straßenseitige Wohnung: Nicht unterkellert b) Mittlere Wohnung: Voll unterkellert, hier Heizungsraum und verschiedene Abstellräume c) Gartenseitige Wohnung: nicht bzw. teilunterkellert II. Erdgeschoss (EG): a) Straßenseitige Wohnung: Schlafzimmer, offene Diele mit Küchenbereich, WC, Flurbereich mit Treppenaufgang b) Mittlere Wohnung: Diele, Flurbereich, Bad, Wohnzimmer, Küche mit Wintergartenzugang c) Gartenseitige Wohnung: Diele mit Treppenaufgang, Büro, Flur, Bad, HWR, großes Wohn-Esszimmer mit integrierter Küche III. Dachgeschoss (DG): a) Straßenseitige Wohnung: Wohnzimmer mit Loggia Zugang, 3 Zimmer, 2 Bäder, Flur mit Treppenaufgang (Wendeltreppe), ehemalige Diele sowie Flur b) Gartenseitige Wohnung: Flur mit Treppenaufgang, Kinderzimmer, Bad, Schlafzimmer mit Zugang zur Dachterrasse Sonstige Nebengebäude (laut Sachverständigengutachten): Schuppen Nach den Feststellungen des Grundstückssachverständigen wurde mit Mitteilung gem. § 62 der Niedersächsischen Bauordnung an die Stadt Oldenburg vom 28.04.2021 nur die Erweiterung und Umbau eines Einfamilienwohnhauses (Anbau und Umbau zur Schaffung einer zweiten Wohneinheit und Errichtung einer Dachterrasse) angezeigt. Tatsächlich erfolgte die Erweiterung zu einem Dreifamilienwohnhaus. Der Grundriss wurde durch verschiedene Öffnungen und Schließungen verschiedener Wände und Türen stark verändert. Der neuerrichtete Bauteil (Gartenseitige Wohnung) wurde größer errichtet als geplant.
Lage & Flurstücke
Hirseweg 5, 26125 Oldenburg, Ohmstede, Niedersachsen