
Beschreibung
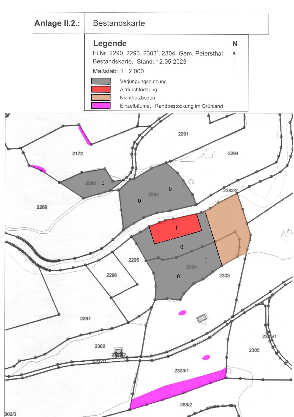
zu lfd. Nr. 1 Objektbeschreibung/Lage (lt Angabe d. Sachverständigen): In Riedis, 87466 Oy-Mittelberg/Petersthal; Grdst. bebaut mit Garagengebäude (Reihengarage mit 3 Einzelgaragen); Bj. ca. 1978; Nfl. ca. 55,5 m²; Stromanschluss; dazu Grünland und Waldanteil; zu lfd.Nr. 2 Objektbeschreibung/Lage (lt Angabe d. Sachverständigen): Mühlsteig, 87466 Oy-Mittelberg/Petersthal; Grünland und Waldrand (Fläche für Landwirtschaft im Außenbereich); Gelände abfallend, wellig, einige Felsbrocken, nicht durchgängig befahrbar; Zuwegung gesichert; ordentliche Bewirtschaftungsgröße (insbesondere in Verbindung mit Flst. 2172/1); zu lfd.. Nr. 3 Objektbeschreibung/Lage (lt Angabe d. Sachverständigen): Mühlsteig, 87466 Oy-Mittelberg/Petersthal; Grünland (Fläche für Landwirtschaft im Außenbereich); Gelände abfallend, einige Wellen, größtenteils befahrbar; Zuwegung gut gesichert; gute Bewirtschaftungsgröße; Pflanzenkläranlage; zu lfd. Nr. 4 Objektbeschreibung/Lage (lt Angabe d. Sachverständigen): Riedis 6, 87466 Oy-Mittelberg/Petersthal; Grdst. bebaut mit Bauernhaus, angebauten Wirtschaftsgebäuden (Milchviehstall, Ober-/Untertenne mit Hocheinfahrt) und Stadel; Gelände nach Süden abfallend; außerdem Grünfläche und kleiner Waldanteil; Außenbereich; Bj. Bauernhaus unbekannt (wohl 300-350 Jahre alt; Umsetzung wohl um 1800); Teilunterkellerung (nur auf Südseite); keine Innenbesichtigung des Bauernhauses (Wirtschaftsgebäude konnten besichtigt werden); Wirtschaftsgebäude seit Jahrzehnten ungenutzt; zu lfd. Nr. 5 Objektbeschreibung/Lage (lt Angabe d. Sachverständigen): Meerreine, 87466 Oy-Mittelberg/Petersthal; kompakte Ausformung in Ost-West-Erstreckung; im Süden weitere Waldflächen angrenzend, im Norden Grünland; Gelände von Nord nach Süd abfallend; tlw. ggf. Bodenschutz- und Lawinenschutzwald sowie Teil von Schutzgebieten; Zuwegung über befestigten Feldweg; Fichten-Tannen-Buchen-Bestand; zu lfd. Nr. 6 Objektbeschreibung/Lage (lt Angabe d. Sachverständigen): Mühlsteig, 87466 Oy-Mittelberg/Petersthal; Grünland, Waldrand, Weg (Fläche für Landwirtschaft im Außenbereich); von Flst. 2172/1 vom Weg getrennt; Zuwegung gesichert; Gelände abfallend, wellig, einige Felsbrocken, nicht durchgängig befahrbar; kaum ordentliche Bewirtschaftungsgröße; Stromleitung (größerer Mast) auf Grdst., aber noch nicht dingl. gesichert; zu lfd. Nr. 7 Objektbeschreibung/Lage (lt Angabe d. Sachverständigen): Meerreine, 87466 Oy-Mittelberg/Petersthal; annähernd trapezförmige Ausformung in Ost-West-Erstreckung; allseits von weiteren Waldflächen umgeben, im Norden Grünland angrenzend; Gelände von Nord nach Süd mäßig steil bis sehr steil abfallend; tlw. ggf. Bodenschutz- und Lawinenschutzwald sowie Teil von Schutzgebieten; Zuwegung über befestigten Feldweg und Wiesengrdst. Flst. 2291; Fichten-Bestand mit einzelnen Tannen; zu lfd. Nr. 8 Objektbeschreibung/Lage (lt Angabe d. Sachverständigen): Meerreine, 87466 Oy-Mittelberg/Petersthal; annähernd rechteckige Ausformung in Nordost-Südwest-Erstreckung; allseits von weiteren Waldflächen umgeben, im Norden Grünland angrenzend; Gelände von Nord nach Süd mäßig steil bis sehr steil abfallend; tlw. ggf. Bodenschutz- und Lawinenschutzwald sowie Teil von Schutzgebieten; Zuwegung über befestigten Feldweg und Wiesengrdst. Flst. 2291; Fichten-Tannen-Bestand mit einzelnen Buchen; zu lfd. Nr. 9 Objektbeschreibung/Lage (lt Angabe d. Sachverständigen): Mühlsteig, 87466 Oy-Mittelberg/Petersthal; annähernd rechteckige Ausformung in Nordost-Südwest-Erstreckung; allseits von weiteren Waldflächen umgeben, im Norden Grünland angrenzend; Gelände von Nord nach Süd steil bis sehr steil abfallend; tlw. ggf. Bodenschutz- und Lawinenschutzwald sowie Teil von Schutzgebieten; Zuwegung über befestigten Feldweg und unbefestigten Wiesenweg; Fichten-Eschen-Bestand mit einzelnen Buchen; zu lfd. Nr. 10 Objektbeschreibung/Lage (lt Angabe d. Sachverständigen): Bodum, 87466 Oy-Mittelberg/Petersthal; Grünland, Wald, Wasserfläche (Rottach), Gehölz; Zuwegung gesichert; Gelände abfallend, teils wellig; Grünland ordentliche Bewirtschaftungsgröße; Fläche für Land- und Forstwirtschaft im Außenbereich; Stromleitung (nicht dingl. gesichert); ehemaliger Sommerstall auf Grdst. (EG und OG mit Hocheinfahrt); Waldfläche annähernd rechteckige Ausformung in Nordost-Südwest-Erstreckung; allseits von weiteren Waldflächen umgeben; Gelände von Süd nach Nord steil bis sehr steil abfallend; tlw. ggf. Bodenschutz- und Lawinenschutzwald und Erholungswald sowie Teil von Schutzgebieten; Zuwegung über Grünfläche und Waldfläche Flst. 2304; Fichten-Laubholz-Bestand (Esche, Ahorn, Buche) sowie Fichten-Bestand; zu lfd. Nr. 11 Objektbeschreibung/Lage (lt Angabe d. Sachverständigen): Bodum, 87466 Oy-Mittelberg/Petersthal; Grünland, Wald, Gehölz; Zuwegung gesichert; Gelände ansteigend, teils wellig mit felsigen Aussparungen; Grünland weniger wirtschaftliche Bewirtschaftungsgröße; Fläche für Land- und Forstwirtschaft im Außenbereich; zu lfd. Nr. 12 Objektbeschreibung/Lage (lt Angabe d. Sachverständigen): Bodum, 87466 Oy-Mittelberg/Petersthal; annähernd trapezförmige Ausformung in Nordost-Südwest-Erstreckung; allseits von weiteren Waldflächen umgeben, im Süden Grünland angrenzend; Gelände von Süd nach Nord steil bis sehr steil abfallend; tlw. ggf. Bodenschutz- und Lawinenschutzwald und Erholungswald sowie Teil von Schutzgebieten; Zuwegung über Feldweg zur Südgrenze Flst. 2303, von dort über Grünlandfläche; Fichten-Laubholz-Bestand (Esche, Ahorn, Buche); zu lfd. Nr. 22 Objektbeschreibung/Lage (lt Angabe d. Sachverständigen): Riediser Moos, 87466 Oy-Mittelberg/Petersthal; land-/forstwirtschaftl. Fläche im Außenbereich; ehemaliger Torfstich; eben; Zufahrt nicht gesichert (nur über Nachbargrundstück, keine dingl. Sicherung); Baumbestand vorwiegend aus Fichten (vorrangig Traufbäume), Erlen und Gebüsch; unbebaut; zu lfd. Nr. 23 Objektbeschreibung/Lage (lt Angabe d. Sachverständigen): Riediser Moos, 87466 Oy-Mittelberg/Petersthal; land-/forstwirtschaftl. Fläche im Außenbereich; ehemaliger Torfstich; eben; Zufahrt nicht gesichert (nur über Nachbargrundstück, keine dingl. Sicherung); Baumbestand vorwiegend aus Ebereschen, Birken, Gebüsch und Fichten; unbebaut; zu lfd. Nr. 24 Objektbeschreibung/Lage (lt Angabe d. Sachverständigen): Riediser Moos, 87466 Oy-Mittelberg/Petersthal; land-/forstwirtschaftl. Fläche im Außenbereich; Grünland mit etwas Wald (eine große Trauffichte und Fichtenauswuchs); Zufahrt gesichert; eben, gut befahrbar; unbebaut; zu lfd. Nr. 25 Objektbeschreibung/Lage (lt Angabe d. Sachverständigen): Riediser Moos, 87466 Oy-Mittelberg/Petersthal; landwirtschaftl. Fläche im Außenbereich; Grünland; Zufahrt gesichert; leicht ansteigend, durchgehend befahrbar; unbebaut; zu lfd. Nr. 26 Objektbeschreibung/Lage (lt Angabe d. Sachverständigen): Rauhhalde, 87477 Sulzberg; unbebautes Grdst. im Außenbereich; als Fläche für Land- und Forstwirtschaft ausgewiesen; Zufahrt durch Schotterweg gesichert; Grünland und Waldstreifen (vorrangig Fichten, wenige Laubbäume); ansteigend, größtenteils befahrbar, wenige Mulden; unterdurchschnittliche Bewirtschaftungsgröße; Lehmboden Zustandsstufe 3, Wasserstufe 3, Gründlandzahl 17, Grünlandgrundzahl nicht erhoben; deutliche Beschattung durch Waldbestand;
Lage & Flurstücke
Riedis 6, 87466 Oy-Mittelberg, Petersthal, Bayern