
1 / 12
Beschreibung
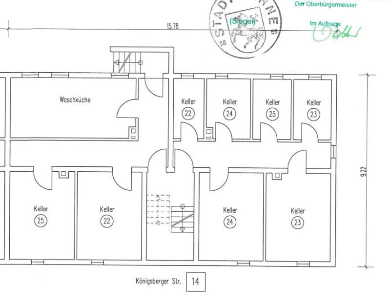
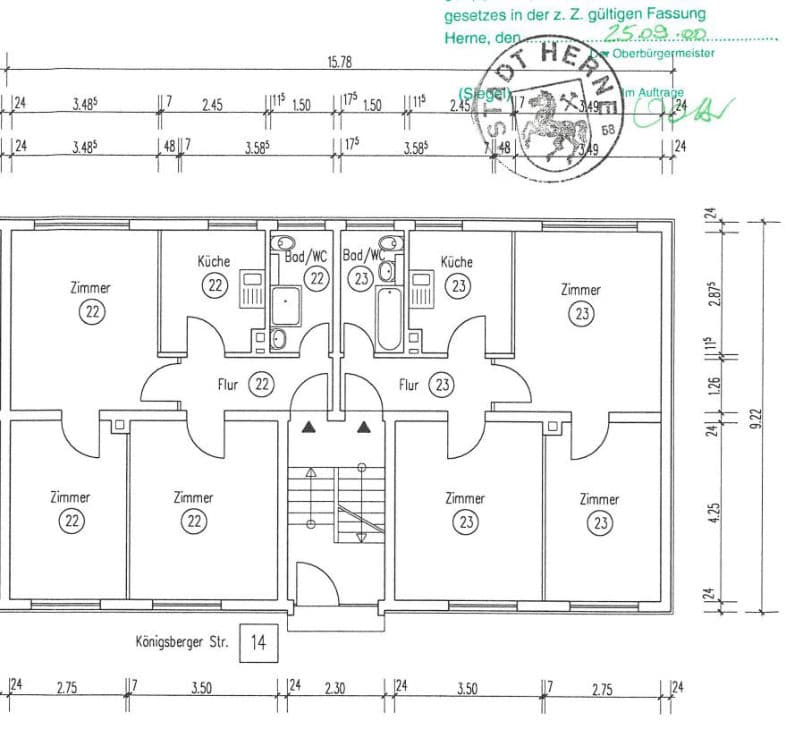
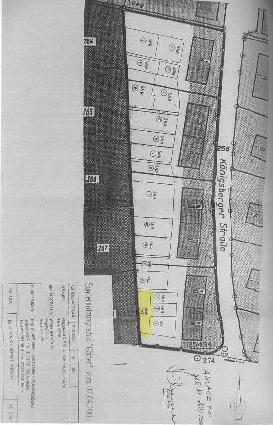
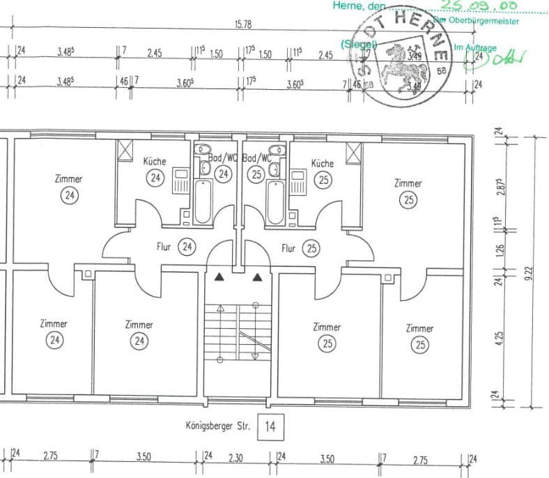
Laut Wertgutachten nach äußerem Anschein zum Stichtag 31.10.2025 handelt es sich um eine Wohnung im 1. Obergeschoss links in einem Vierfamilienhaus aus dem Jahr 1954 nebst 2 Kellerräumen bestehend aus 3 Zimmern, Küche, Flur, Bad (Größe: 56 m²). Laut Grundbuch besteht ein Sondernutzungsrecht an einer Gartenfläche. Für das Gebäude ist kein Energieausweis vorhanden.
Lage & Flurstücke
Keine Koordinaten verfügbar
Königsberger Straße 14, 16, 44649 Herne, Nordrhein-Westfalen
Kostenrechner
Kostenrechner für Zwangsversteigerungen
Objektdaten
Verkehrswert:61.000 €
Bundesland:Nordrhein-Westfalen
Grunderwerbsteuer:6,5 %
Ihre Eingaben
€
€
Rechtlicher Hinweis: Diese Berechnung dient ausschließlich der Orientierung und stellt keine rechtliche, steuerliche oder finanzielle Beratung dar. Alle Angaben erfolgen ohne Gewähr. Für eine verbindliche Auskunft wenden Sie sich bitte an einen Rechtsanwalt, Steuerberater oder Ihre Bank.