
Beschreibung
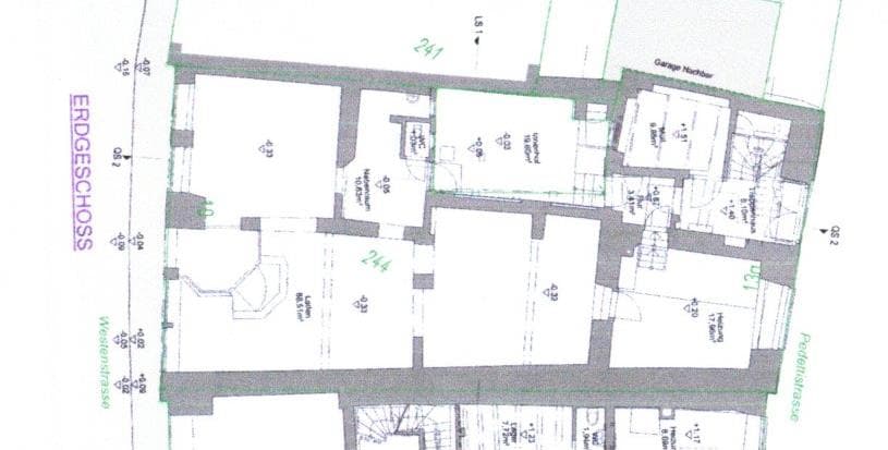
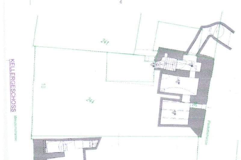
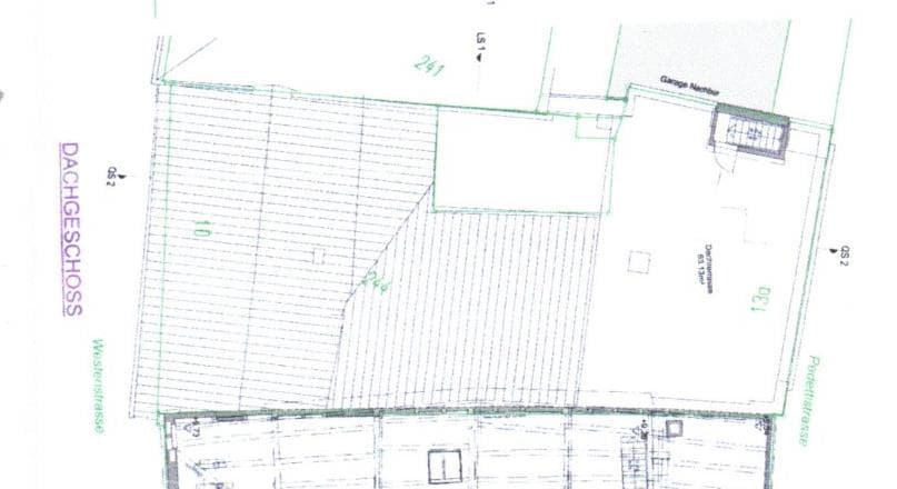
Lfd. Nr. 1 Objektbeschreibung/Lage (lt Angabe d. Sachverständigen) : 1/2 Miteigentumsanteil an einem denkmalgeschützten Mehrfamilienhaus mit Ladengeschäft, Wohnfläche ca. 201qm, Nutzfläche ca. 196qm, Baujahr: ca. 15. Jhd; Lfd. Nr. 2 Objektbeschreibung/Lage (lt Angabe d. Sachverständigen) : 1/2 Miteigentumsanteil an einem denkmalgeschützten Mehrfamilienhaus mit Ladengeschäft, Wohnfläche ca. 201qm, Nutzfläche ca. 196qm, Baujahr: ca. 15. Jhd; Lfd. Nr. 3 Objektbeschreibung/Lage (lt Angabe d. Sachverständigen) : 1/2 Miteigentumsanteil an realer Bierschenkgerechtsame; Lfd. Nr. 4 Objektbeschreibung/Lage (lt Angabe d. Sachverständigen) : 1/2 Miteigentumsanteil an realer Bierschenkgerechtsame; Lfd. Nr. 5 Objektbeschreibung/Lage (lt Angabe d. Sachverständigen) : 1/2 Miteigentumsanteil an einem denkmalgeschützten Mehrfamilienhaus mit Ladengeschäft, Wohnfläche ca. 271qm, Nutzfläche ca. 275qm, Baujahr: ca. 15. Jhd; Lfd. Nr. 6 Objektbeschreibung/Lage (lt Angabe d. Sachverständigen) : 1/2 Miteigentumsanteil an einem denkmalgeschützten Mehrfamilienhaus mit Ladengeschäft, Wohnfläche ca. 271qm, Nutzfläche ca. 275qm, Baujahr: ca. 15. Jhd;
Dokumente
Lage & Flurstücke
1/2 Miteigentumsanteil an einem denkmalgeschützten Mehrfamilienhaus mit Ladengeschäft; Lfd. Nr. 2, Bayern