
Beschreibung
Der Grundbesitz unter a.) (Blatt 636) ist bebaut mit einem eingeschossigen, nicht unterkellerten Nebengebäude mit nicht ausgebautem Dachgeschoss in zweiter Baureihe ohne Sanitärinstallation und ohne Heizung. Ehemalige Stallanlage umgebaut zu 2 Garagen und 3 Abstellräumen. Das Dachgeschoss ist nicht begehbar wegen desolatem Fußbodenaufbau. Im Erdgeschoss mit Rissbildungen im Mauerwerk. Grundstück ist nur über den Grundbesitz b.) zu erreichen. Der Grundbesitz unter b.) (Blatt 612) ist bebaut mit einem leerstehenden, freistehenden, zweigeschossigen, unterkellerten Wohnhaus mit teilweise ausgebautem Dachgeschoss. Baujahr laut Bauzeichnung 1938 mit Sanierungen in den Jahre 1991 bis 1994. Wohnfläche im Erdgeschoss 87 qm, im Obergeschoss 88 qm und Dachgeschoss 42 qm. Nur ein Bad vorhanden. Heizung auf Erdölbasis und im Erdgeschoss ist noch ein Kachelofen vorhanden. Im Dachgeschoss besteht Holzwurmbefall. Es sind Feuchteschäden im Mauerwerk vorhanden. Der Zugang zum Versteigerungsobjekt erfolgt über ein gemeindeeigenes separates Flurstück ohne amtlich bestehendes Wegerecht.
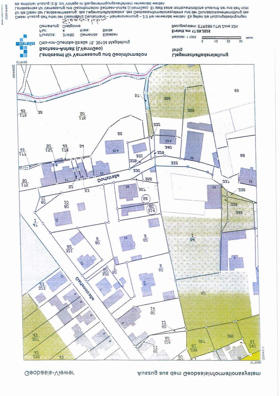
Lage & Flurstücke
Dorfstraße 16, 39365 EIlsleben, OT Ovelgünne/Siegersleben, Sachsen-Anhalt