
1 / 33
Beschreibung
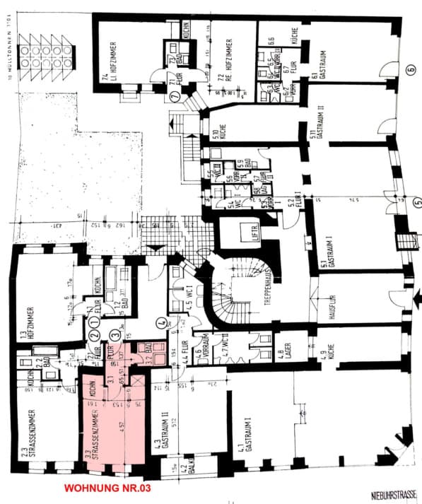
Eigentumswohnung Nr. 3 in Wielandstraße 38, Niebuhrstraße 73, 10629 Berlin Die Wohnung liegt in einem 5-geschossigen Mehrfamilienhaus im Erdgeschoss des Vorderhauses mit Ausrichtung zur Niebuhrstraße. Es handelt sich um eine 1-Zimmer-Wohnung mit integrierter Küche, einem innenliegenden Badezimmer sowie einem Flur. Es erfolgte eine Innenbesichtigung. Wegen aller weiteren Einzelheiten wird auf das hier ausliegende Gutachten (Stand: August 2025) verwiesen. Baujahr: ca. 1904 Wohnfläche: 26,21 m²
Dokumente
Lage & Flurstücke
Keine Koordinaten verfügbar
Wielandstraße 38, Niebuhrstraße 73, 10629 Berlin, Berlin
Kostenrechner
Kostenrechner für Zwangsversteigerungen
Objektdaten
Verkehrswert:110.000 €
Bundesland:Berlin
Grunderwerbsteuer:6,0 %
Ihre Eingaben
€
€
Rechtlicher Hinweis: Diese Berechnung dient ausschließlich der Orientierung und stellt keine rechtliche, steuerliche oder finanzielle Beratung dar. Alle Angaben erfolgen ohne Gewähr. Für eine verbindliche Auskunft wenden Sie sich bitte an einen Rechtsanwalt, Steuerberater oder Ihre Bank.