
Beschreibung
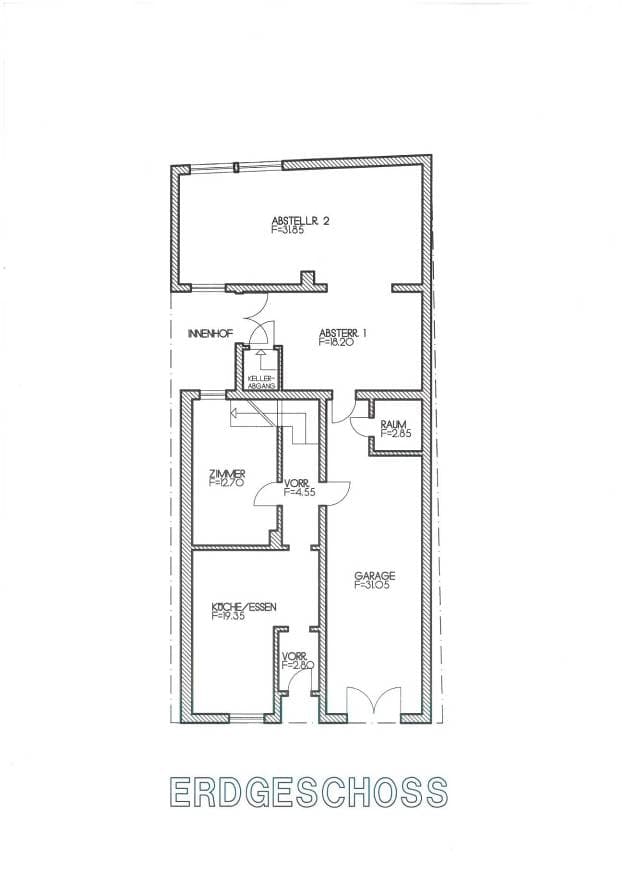
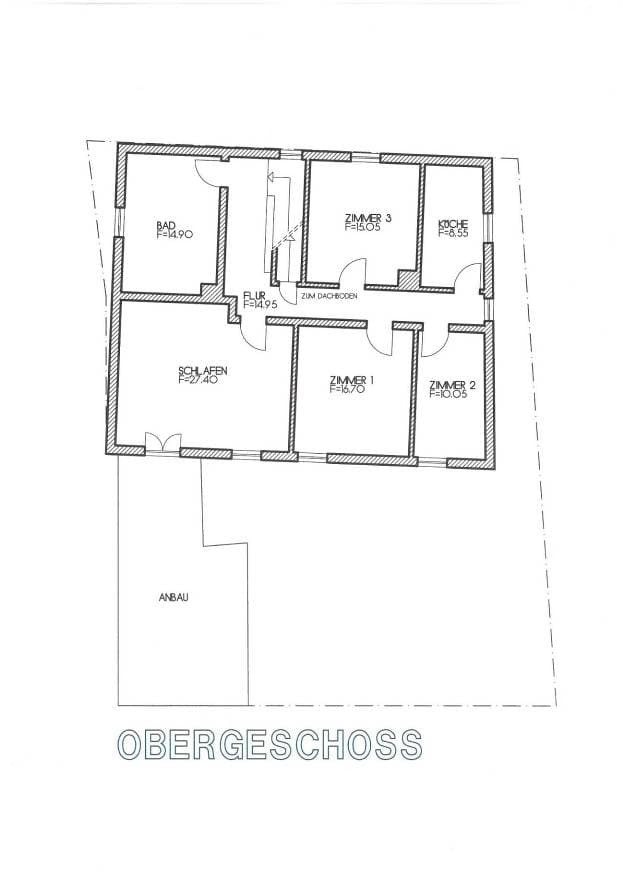
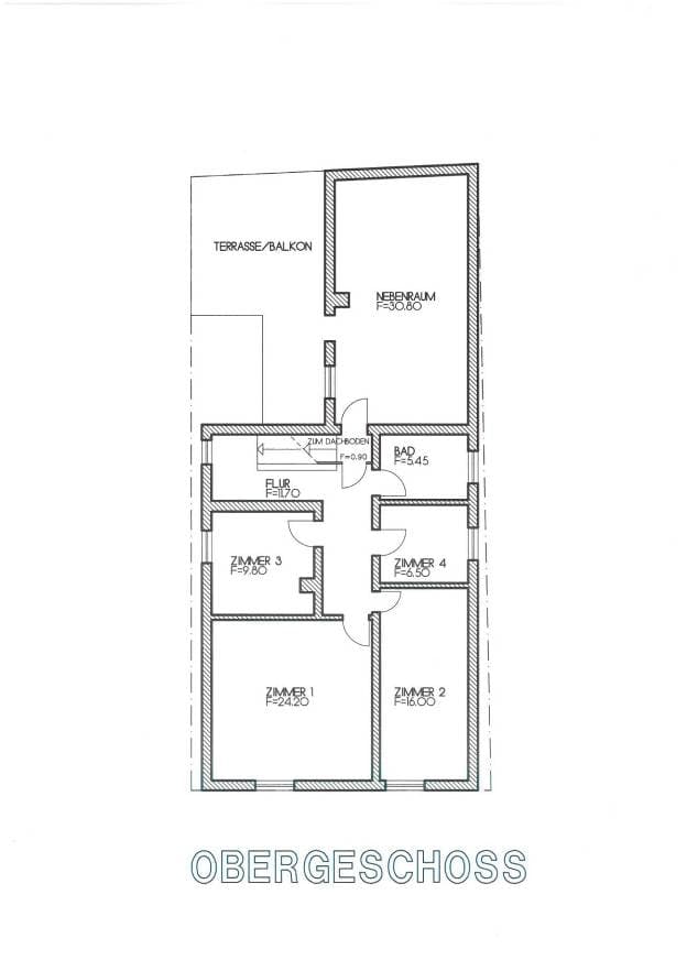
Lfd. Nr. 1 Objektbeschreibung/Lage (lt Angabe d. Sachverständigen): Leicht trapezförmiges Grundstück bebaut mit Einfamilienwohnhaus mit Anbau (Schuppen) und Teilunterkellerung (Zugang zu teilweiser Unterkellerung über Flst. 59); Baujahr vermutlich 1950 - 1960; Wohnfläche ca. 205 m²; Beheizung durch einzelne Nachtspeicheröfen sowie Elektroheizgeräte; Flachdach über Anbau begehbar; Zustand insgesamt normal, gewisser Renovierungs- und Instandsetzungsbedarf jedoch ersichtlich; Objekt leerstehend; Lage des Grundstücks im Überschwemmungsgebiet des Mains Im Übrigen wird auf die ausführliche und differenzierte Darstellung im Gutachten verwiesen. Lfd. Nr. 8 Objektbeschreibung/Lage (lt Angabe d. Sachverständigen): Trapezförmiges Grundstück ohne Wohnbebauung, nur mit Kellergeschoss; Baujahr ca. 1985; seit Bauausführung keine weiteren Maßnahmen getätigt (war Witterungen und Überschwemmungen ausgesetzt); Konstruktion bzw. Trageigenschaften können nicht beurteilt werden: Lage im Überschwemmungsgebiet des Mains. Lfd. Nr. 9 Objektbeschreibung/Lage (lt Angabe d. Sachverständigen): Leicht trapezförmiges, ebenes Grundstück; mittlere Länge ca. 20,00 m; mittlere Tiefe ca. 21,00 m; tatsächliche Nutzung als Grünland; Lage im Überschwemmungsgebiet des Mains. Lfd. Nr. 10 Objektbeschreibung/Lage (lt Angabe d. Sachverständigen): Fast rechteckiges Grundstück bebaut mit Einfamilienwohnhaus mit Anbau (Schuppen) und Teilunterkellerung; Baujahr vermutlich im 19. Jahrhundert; Wohnfläche ca. 113 m²; lt. Kaminkehrer ist keine Feuerungsanlage angemeldet, jedoch befinden sich Heizkörper im Objekt und ein Einzelofen im Erdgeschoss; Objekt leerstehend und in verwahrlostem/vermülltem Zustand; Lage des Grundstücks im Überschwemmungsgebiet des Mains Im Übrigen wird auf die ausführliche und differenzierte Darstellung im Gutachten verwiesen. Lfd. Nr. 13 Objektbeschreibung/Lage (lt Angabe d. Sachverständigen): Unregelmäßig geschnittenes Grundstück bebaut mit Lagergebäude/Garage; Baujahr vermutlich 1950 - 1960; keine Sanitärinstallation/Heizung/Warmwasserversorgung vorhanden; Nutzfläche EG und OG jeweils ca. 108 m²; Objekt leerstehend und in verwahrlostem und vermülltem Zustand Grundstück befindet sich im Überschwemmungsgebiet; Im Übrigen wird auf die ausführliche und differenzierte Darstellung im Gutachten verwiesen.
Dokumente
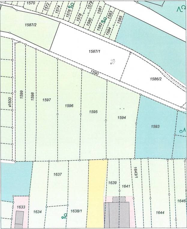
Lage & Flurstücke
Frank-Ritter-Straße 2,Kirchstraße 48, An der Kirchstraße, Am Breiten Hauswehr, Kirchstraße 42, Kirchstraße 44, 97332 Volkach, Astheim, Bayern