
Beschreibung
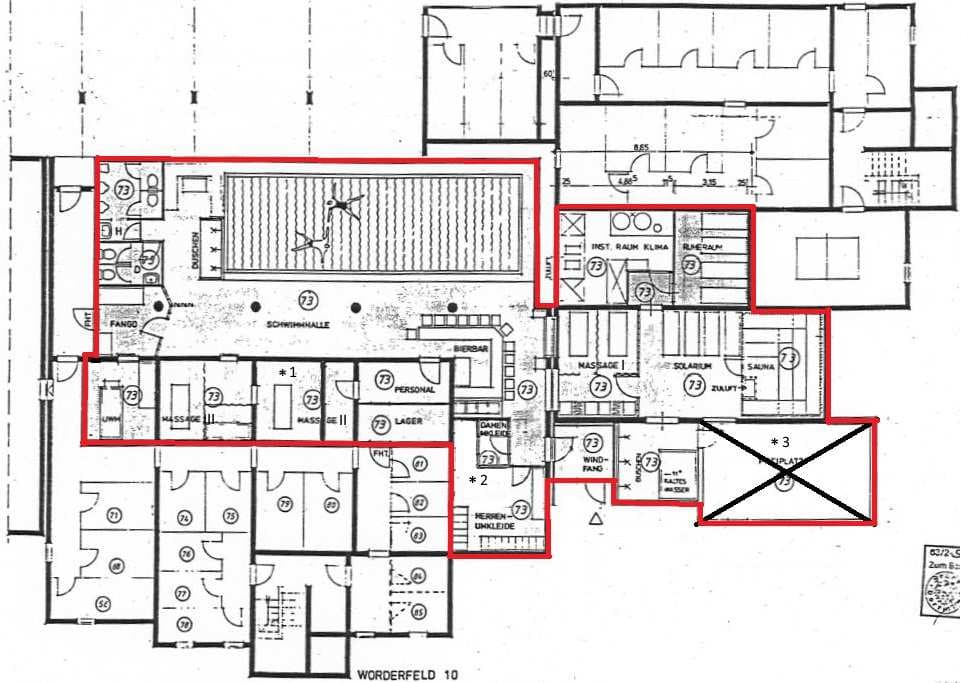
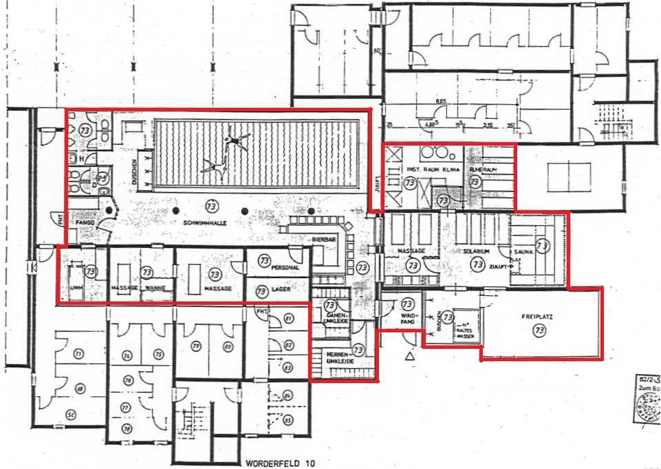
Laut Gutachten befindet sich das Teileigentum (Schwimmbad, Sauna) im Kellergeschoss der vier- bzw. sechsgeschossigen Mehrfamilienhäuser "Worderfeld 10 und 12" (Bj. 1974). Die Eigentümergemeinschaft besteht insgesamt aus acht unterkellerten, vier- bis achtgeschossigen Mehrfamilienhäusern mit insgesamt 144 Wohnungen, dem hiesigen stillgelegten Schwimmbad sowie 110 Tiefgaragenstellplätzen. Das Teileigentum verfügt laut Planunterlagen über eine Nutzfläche von ca. 336 m², ist seit mehreren Jahren leerstehend und befindet sich in einem schlechten und sehr stark sanierungsbedürftigen, nicht vermietbaren Zustand. Das Hausgeld ist sehr hoch. Ein Ansprechpartner kann nicht benannt werden.
Lage & Flurstücke
Worderfeld 2 - 16 gerade, 44357 Dortmund, Oestrich, Nordrhein-Westfalen