
1 / 31
Beschreibung
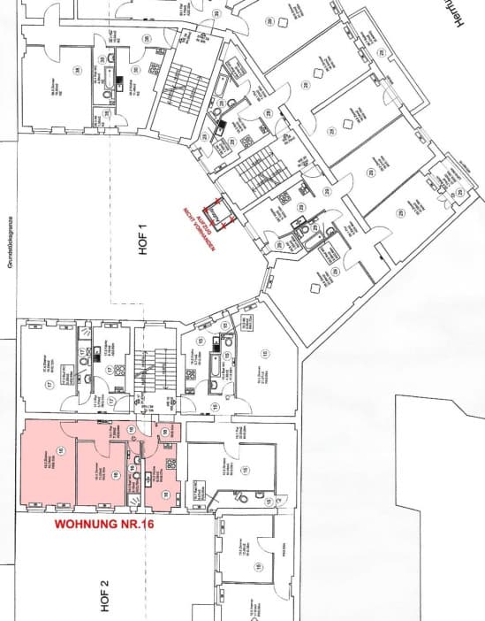
Nach den Angaben der gerichtlich bestellten Sachverständigen handelt es sich um eine ca. 46,11 qm² große 2-Zimmer-Wohnung belegen im 4. Obergeschoss eines fünfgeschossigen Wohn- und Geschäftshauses, Baujahr ca. 1909. Die weiteren Angaben können dem Gutachten entnommen werden.
Dokumente
Lage & Flurstücke
Keine Koordinaten verfügbar
Schillerpromenade 6, Herrfurthplatz 4, 12049 Berlin, Neukölln, Berlin
Kostenrechner
Kostenrechner für Zwangsversteigerungen
Objektdaten
Verkehrswert:220.000 €
Bundesland:Berlin
Grunderwerbsteuer:6,0 %
Ihre Eingaben
€
€
Rechtlicher Hinweis: Diese Berechnung dient ausschließlich der Orientierung und stellt keine rechtliche, steuerliche oder finanzielle Beratung dar. Alle Angaben erfolgen ohne Gewähr. Für eine verbindliche Auskunft wenden Sie sich bitte an einen Rechtsanwalt, Steuerberater oder Ihre Bank.