
Beschreibung
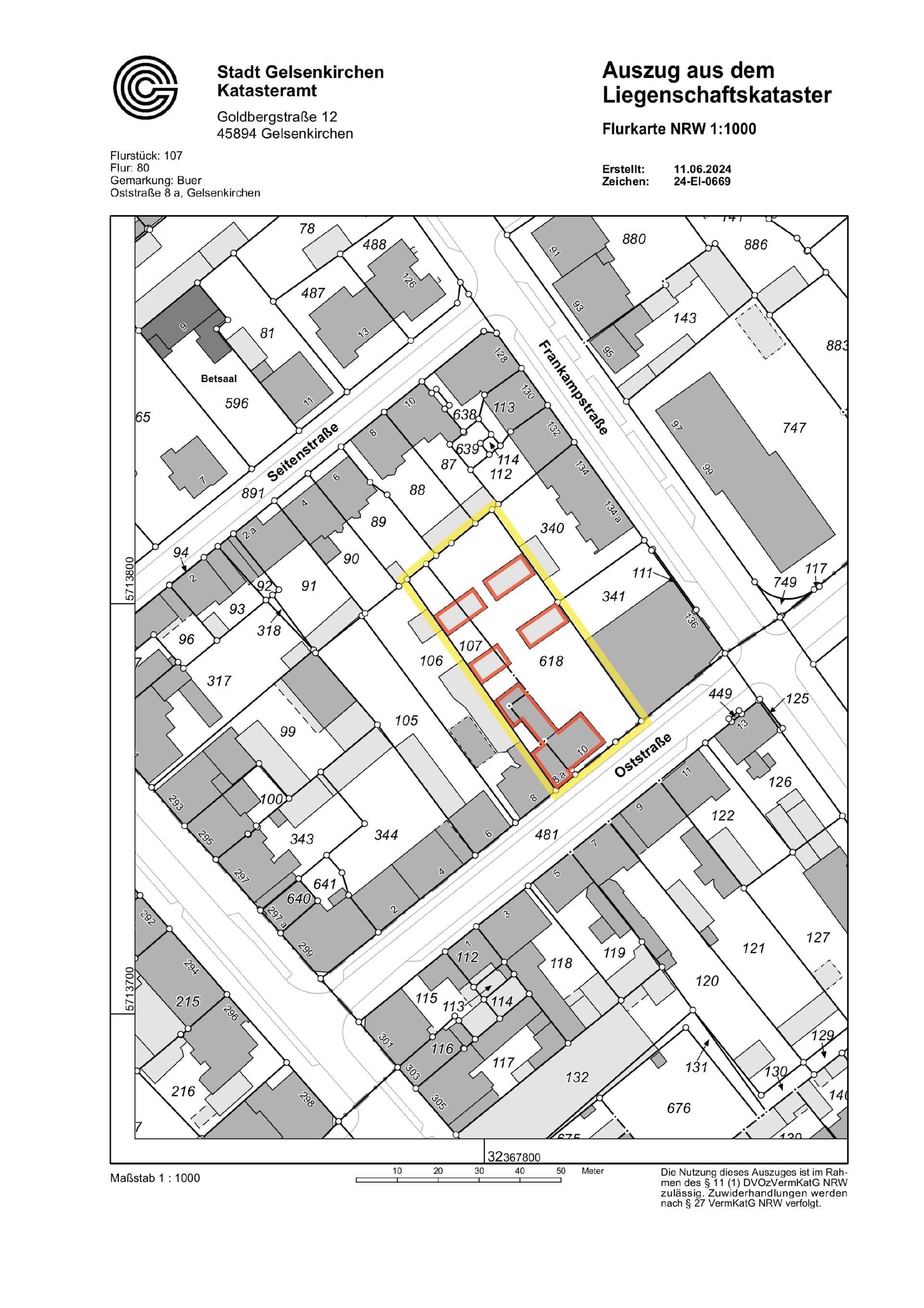
Laut Wertgutachten handelt es sich um die mit zwei Mehrfamilienhäusern, II,- teilweise III-geschossig mit einem Anbau (Einfamilienhaus) und Garagen bebaute Grundstücke in der Straße „Oststraße 8 a“ (Nr. 16 im Bestandsverzeichnis Grundbuch von Buer Blatt 2321 mit 5 Garagen) und „Oststraße 10“ (Nr. 19 im Bestandsverzeichnis Grundbuch von Buer Blatt 2321 mit 10 Garagen) in 45891 Gelsenkirchen-Erle. Wohnfläche Haus Nr. 8 a insgesamt ca. 108 qm und Haus Nr. 10 insgesamt ca. 265 qm (Aufteilung der Wohnungen siehe Gutachten und Exposé). Ursprungsbaujahr ca. 1899. Zum Zeitpunkt der Gutachtenerstellung waren zwei Wohnungen vermietet und die übrigen Wohnungen leerstehend. Die leerstehenden Wohnungen konnten nicht besichtigt werden und sind in dem jetzigen Zustand nicht vermietbar. Für Altmerkmale und Schäden, das Risiko des bauordnungsrechtlichen Status und für die reduzierte Nutzungsdauer der Garagen wurde vom Gutachter ein Wertabschlag in Höhe von insgesamt 263.220,00 Euro vorgenommen. Die Einsichtnahme in das komplette Gutachten wird angeraten.
Dokumente
Lage & Flurstücke
Oststraße 8 a/Oststraße 10, 45891 Gelsenkirchen, Erle, Nordrhein-Westfalen