
1 / 73
Beschreibung
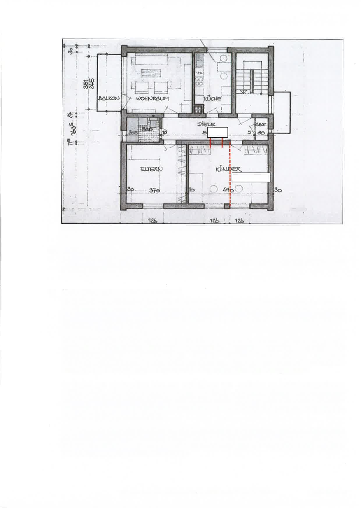
Laut Wertgutachten - erstellt ohne Innenbesichtigung - handelt es sich um ein freistehendes, voll unterkellertes Zweifamilienhaus mit Dachgeschossausbau im Außenbereich gemäß § 35 BauGB. Die erste Wohnung mit drei Wohn-/Schlafräumen, einem Abstellraum und einer Terasse befindet sich im Erd- und Dachgeschoss. Die weitere Wohnung ist deckungsgleich, jedoch mit Balkon im Obergeschoss gelegen. Die Errichtung als Teil einer landwirtschaftlichen Hofstelle war im Jahr 1966, Um-/Ausbau der Räume im Dachgeschoss im Jahr 2000. Es sind Baulasten in Form einer Zuwegungs- und Abstandsflächenbaulast vorhanden.
Dokumente
Lage & Flurstücke
Keine Koordinaten verfügbar
Oberhausener Str. 370, 46240 Bottrop, Nordrhein-Westfalen
Kostenrechner
Kostenrechner für Zwangsversteigerungen
Objektdaten
Verkehrswert:285.000 €
Bundesland:Nordrhein-Westfalen
Grunderwerbsteuer:6,5 %
Ihre Eingaben
€
€
Rechtlicher Hinweis: Diese Berechnung dient ausschließlich der Orientierung und stellt keine rechtliche, steuerliche oder finanzielle Beratung dar. Alle Angaben erfolgen ohne Gewähr. Für eine verbindliche Auskunft wenden Sie sich bitte an einen Rechtsanwalt, Steuerberater oder Ihre Bank.