
1 / 11
Beschreibung
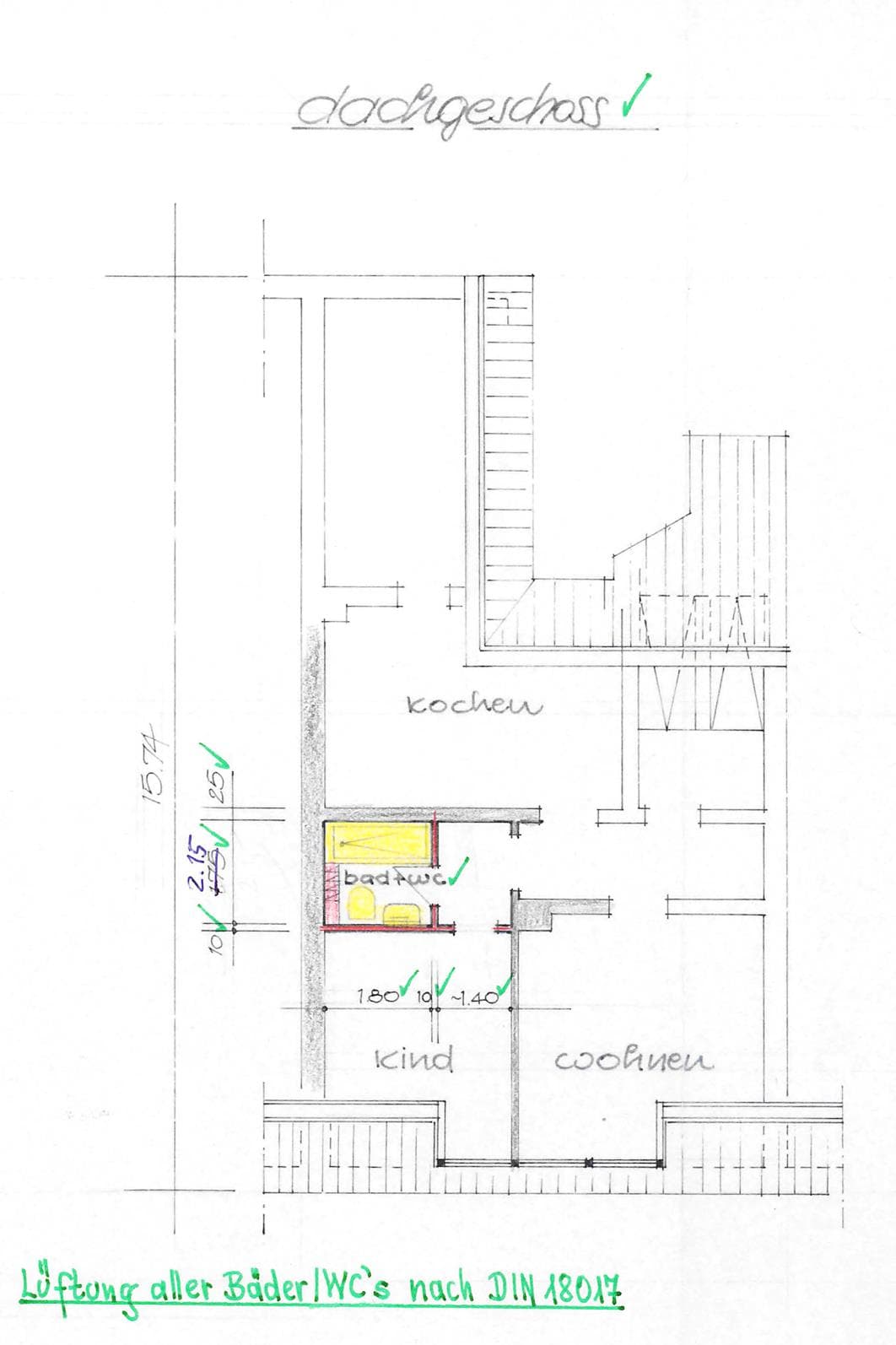
Laut Wertgutachten handelt es sich um ein Grundstück, bebaut mit einem Mehrfamilienwohnhaus (4 WE), in der Sellhorstr. 34, 45888 Gelsenkirchen-Bulmke-Hüllen, Baujahr 1905, insgesamt 266 m² Wfl., Bauschäden/Baumängel. Eine Innenbesichtigung der WE Nr. 2 (I. OG) und der WE Nr. 4 (DG) wurden der Sachverständigen nicht ermöglicht. Das Mehrfamilienwohnhaus stand zum Wertermittlungsstichtag (17.08.2023) insgesamt leer. Die Einsichtnahme des kompletten Gutachtens nebst allen Anlagen wird dringend angeraten!
Dokumente
Lage & Flurstücke
Keine Koordinaten verfügbar
Sellhorststr. 34, 45888 Gelsenkirchen, Bulmke-Hüllen, Nordrhein-Westfalen
Kostenrechner
Kostenrechner für Zwangsversteigerungen
Objektdaten
Verkehrswert:140.000 €
Bundesland:Nordrhein-Westfalen
Grunderwerbsteuer:6,5 %
Ihre Eingaben
€
€
Rechtlicher Hinweis: Diese Berechnung dient ausschließlich der Orientierung und stellt keine rechtliche, steuerliche oder finanzielle Beratung dar. Alle Angaben erfolgen ohne Gewähr. Für eine verbindliche Auskunft wenden Sie sich bitte an einen Rechtsanwalt, Steuerberater oder Ihre Bank.