
1 / 20
Beschreibung
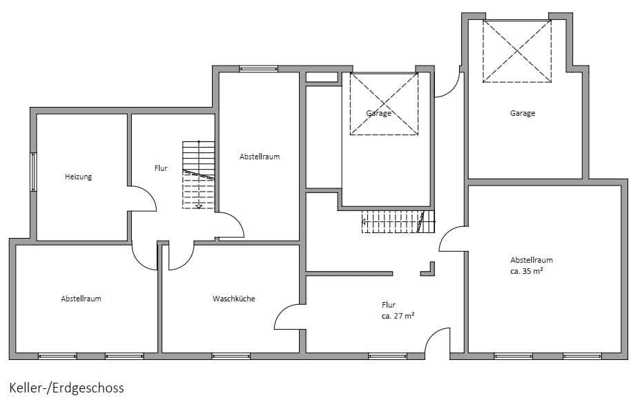
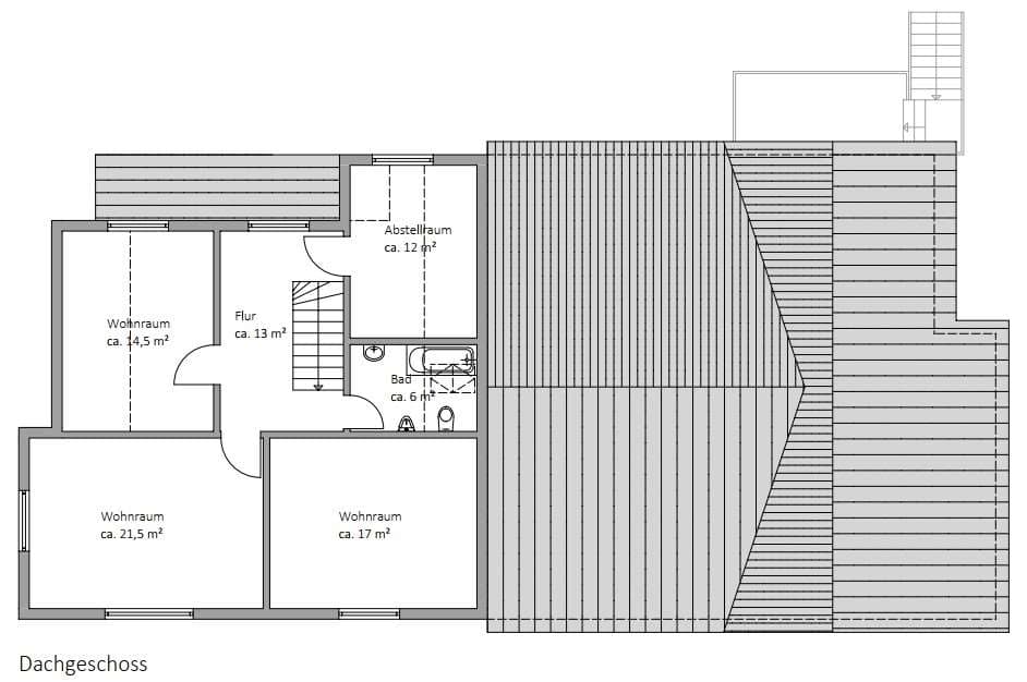
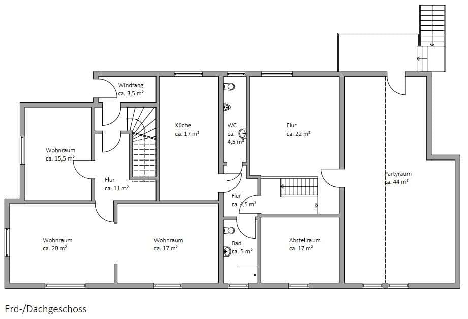
Wohngebäude und Nebengebäude
Lage & Flurstücke
Keine Koordinaten verfügbar
Mackenser Str. 30, 37586 Dassel, Niedersachsen
Kostenrechner
Kostenrechner für Zwangsversteigerungen
Objektdaten
Verkehrswert:0 €
Bundesland:Niedersachsen
Grunderwerbsteuer:5,0 %
Ihre Eingaben
€
€
Rechtlicher Hinweis: Diese Berechnung dient ausschließlich der Orientierung und stellt keine rechtliche, steuerliche oder finanzielle Beratung dar. Alle Angaben erfolgen ohne Gewähr. Für eine verbindliche Auskunft wenden Sie sich bitte an einen Rechtsanwalt, Steuerberater oder Ihre Bank.