
Beschreibung
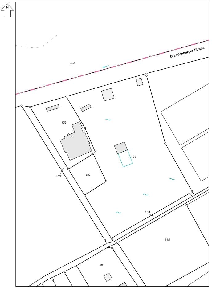
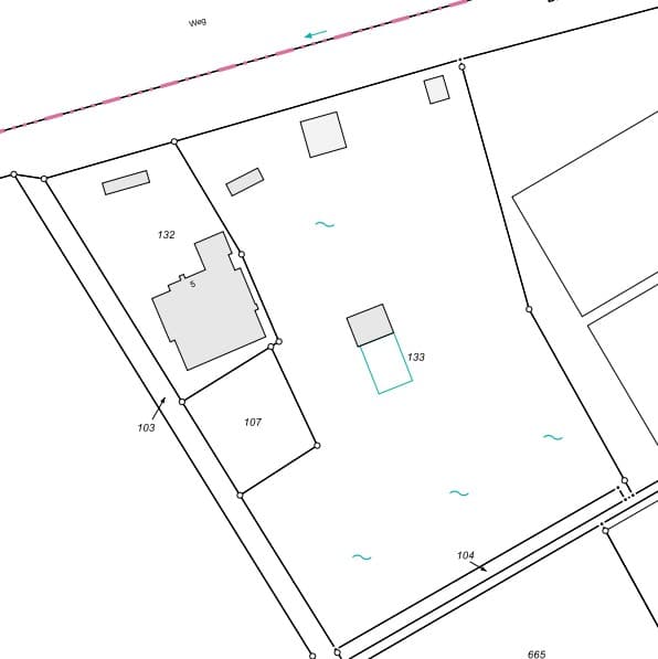
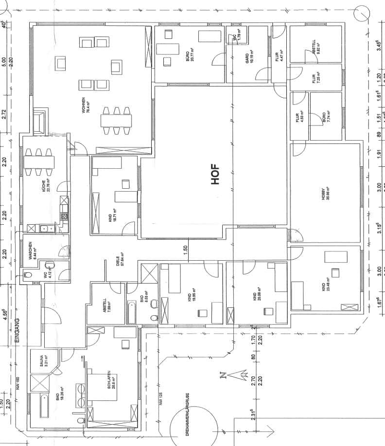
Es handelt sich um drei Grundstücke, bei denen es sich um eine wirtschaftliche Einheit handelt. Es hat keine Besichtigung der Gebäude und der Anlage gegeben. EIne Beurteilung erfolgte ausschließlich auf Grund der Außenansichten von außerhalb des Grundstücks und der vorhanden Daten. Bei dem Wohngebäude handelt es sich um ein freistehendes nicht unterkellertes Einfamilienhaus mit Walmdach. Die Wohn- und Nutzfläche beträgt 417 m². Das Baujahr war1962 mit der Schlußabnahme 1968. Eine Erweiterung erfolgte 1975. 2008-2010 erfolgte der Umbeu des Wohnhauses und die Errichttungg des Daches. Die Gesamtfläche der Grundstücke beträgt 12.547 m². Auf dem Grundstück befinden sich mehrere Nebengebäude (z.B. mehrere Garagen, eine Schwimmhalle, zwei ehemalige Ställe). Es wird hier nur 1/2 Miteigentumsanteil an den Grundstücken versteigert.
Lage & Flurstücke
Brandenburger Straße 5 / Am Delbrücker Wege, Brandenburger Straße 5, Am Delbrücker Wege, 59555 Lippstadt, Nordrhein-Westfalen