
1 / 10
Beschreibung
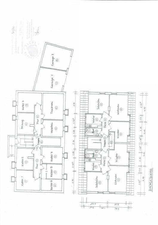
Laut Gutachten handelt es sich bei dem Versteigerungsobjekt um 2 Eigentumswohnungen im ausgebautem Dachgeschoss eines 2-geschossigen unterkellerte Wohnhauses mit 6 Wohneinheiten und einem Garagenanbau. Baujahr: 1955 Die Wohnfläche der einzelen Wohnungen beträgt lt. Bauakte jeweils ca. 63 m². Das Gebäude und die Außenalagen befinden sich in einem unterdurchschnittlichen Zustand.
Lage & Flurstücke
Keine Koordinaten verfügbar
Brandhagener Weg 5, 58762 Altena (Westf.), Nordrhein-Westfalen
Kostenrechner
Kostenrechner für Zwangsversteigerungen
Objektdaten
Verkehrswert:91.000 €
Bundesland:Nordrhein-Westfalen
Grunderwerbsteuer:6,5 %
Ihre Eingaben
€
€
Rechtlicher Hinweis: Diese Berechnung dient ausschließlich der Orientierung und stellt keine rechtliche, steuerliche oder finanzielle Beratung dar. Alle Angaben erfolgen ohne Gewähr. Für eine verbindliche Auskunft wenden Sie sich bitte an einen Rechtsanwalt, Steuerberater oder Ihre Bank.