
Beschreibung
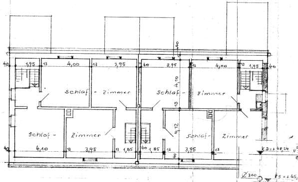
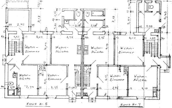
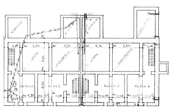
Laut Gutachten handelt es sich bei dem Objekt Luthestr. 5 um ein eingeschossiges Zweifamilienhaus mit ausgeb. DG, teilunterkellert. Massivbauweis mit Satteldach. Aufteilung in 2 Wohnungen mit jeweils eigenem Hauseingang und Nutzung von EG und DG; 1 PKW-Fertiggarage. WF/NF: ca. 94 bzw. ca. 78 m². Laut Gutachten handelt es sich bei dem Objekt Luthestr. 7 um ein eingeschossiges Einfamilienhaus mit ausgeb. DG, teilunterkellert. Massivbauweise mit satteldach. 2 PKW-Fertiggaragen. WF/NF: ca. 180 m². BJ: jeweils ca: 1888. Es bestehen jeweils wechselseitigeEintragungen im Baulastverzeichnis hinswichtlich der gemeinsamen Gebäudetrennwand. im Falle des Abbruchs. Es besteht eine Eintragung im Starkregenvezeichnis der Stadt Essen. Die Obergeschosse der jeweils rückwärtigen Anbauten sind in der Bauakte der Stadt Essen nicht eingetragen. Im Haus Nr. 5 hat außerdem das Schlafzimmer, welches sich im OG des Anbaus befindet, mit 1,96 m keine ausreichende lichte Höhe.Die als Wohnraum ausgebauten Spitzböden sind nicht als Wohnraum genehmigt. Kontaktdaten können nicht bekannt gegeben werden, da es sich um Teilungsversteigerung gem. § 180 ZVG handelt.
Lage & Flurstücke
Luthestr. 5, 7, 45357 Essen, Nordrhein-Westfalen