
1 / 27
Beschreibung
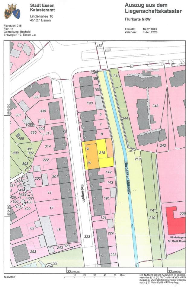
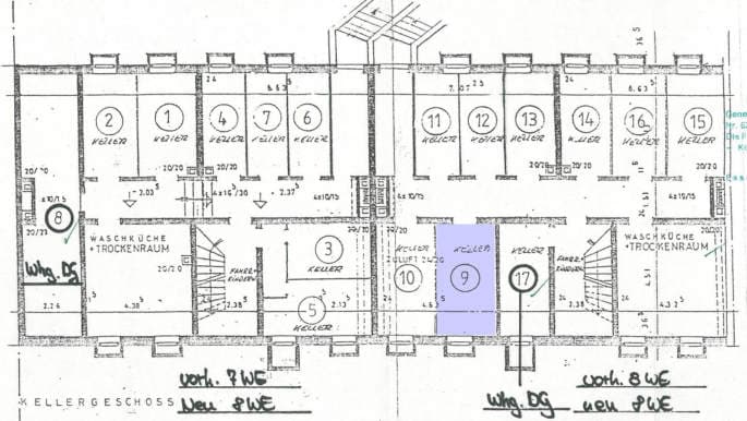
lt. Gutachten handelt es sich um eine 2-Zimmer-Whg. (69 m²) bestehend aus: Diele, Bad, kleinem Abstellraum, Küche, großem Wohnbereich (ehemals zwei Zimmer) und Schlafzimmer mit Ausgang zum rückwärtigen Balkon und einem Kellerraum Die Whg. ist gelegen im Haus Nr. 21, EG links, einem viergeschossigen Mehrfamilienhaus mit ausgebautem Satteldach, voll unterkellert Zweispänner mit insgesamt neun Wohnungen Bj.: 1961
Lage & Flurstücke
Keine Koordinaten verfügbar
Erdwegstraße 19, 21, 45356 Essen, Nordrhein-Westfalen
Kostenrechner
Kostenrechner für Zwangsversteigerungen
Objektdaten
Verkehrswert:77.000 €
Bundesland:Nordrhein-Westfalen
Grunderwerbsteuer:6,5 %
Ihre Eingaben
€
€
Rechtlicher Hinweis: Diese Berechnung dient ausschließlich der Orientierung und stellt keine rechtliche, steuerliche oder finanzielle Beratung dar. Alle Angaben erfolgen ohne Gewähr. Für eine verbindliche Auskunft wenden Sie sich bitte an einen Rechtsanwalt, Steuerberater oder Ihre Bank.