
1 / 10
Beschreibung
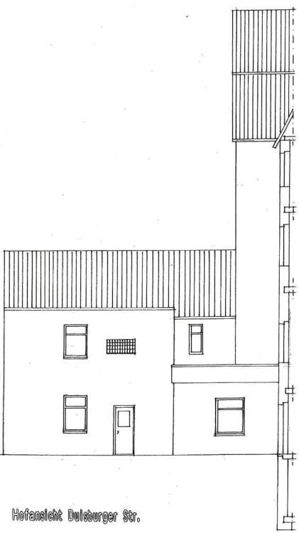
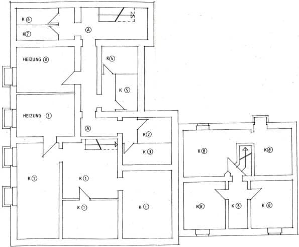
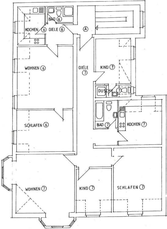
Es handelt sich um eine 4-Zimmer Eigentumswohnung mit 2 Bädern mit insgesamt ca. 110 m² Wohnfläche im Dachgeschoss (3.OG) des Hauses Nr. 51. Das Baujahr ist geschätzt ca. 1909. Die Wohnung befindet sich in einem Wohn- und Geschäftshaus (Gaststätte im Erdgeschoss) mit einem 2-geschossigen seitlichen Anbau (Haus-Nr. 53). Das Objekt ist massiv errichtet auf einem ca. 411 m² großem Grundstück mit insgesamt 8 Einheiten.
Lage & Flurstücke
Keine Koordinaten verfügbar
Duisburger Str. 51 und 53, 45479 Mülheim an der Ruhr, Broich, Nordrhein-Westfalen
Kostenrechner
Kostenrechner für Zwangsversteigerungen
Objektdaten
Verkehrswert:177.000 €
Bundesland:Nordrhein-Westfalen
Grunderwerbsteuer:6,5 %
Ihre Eingaben
€
€
Rechtlicher Hinweis: Diese Berechnung dient ausschließlich der Orientierung und stellt keine rechtliche, steuerliche oder finanzielle Beratung dar. Alle Angaben erfolgen ohne Gewähr. Für eine verbindliche Auskunft wenden Sie sich bitte an einen Rechtsanwalt, Steuerberater oder Ihre Bank.