
Beschreibung
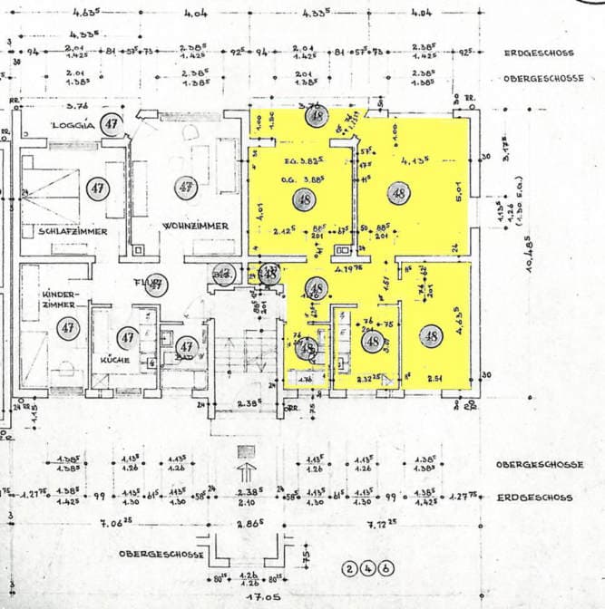
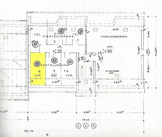
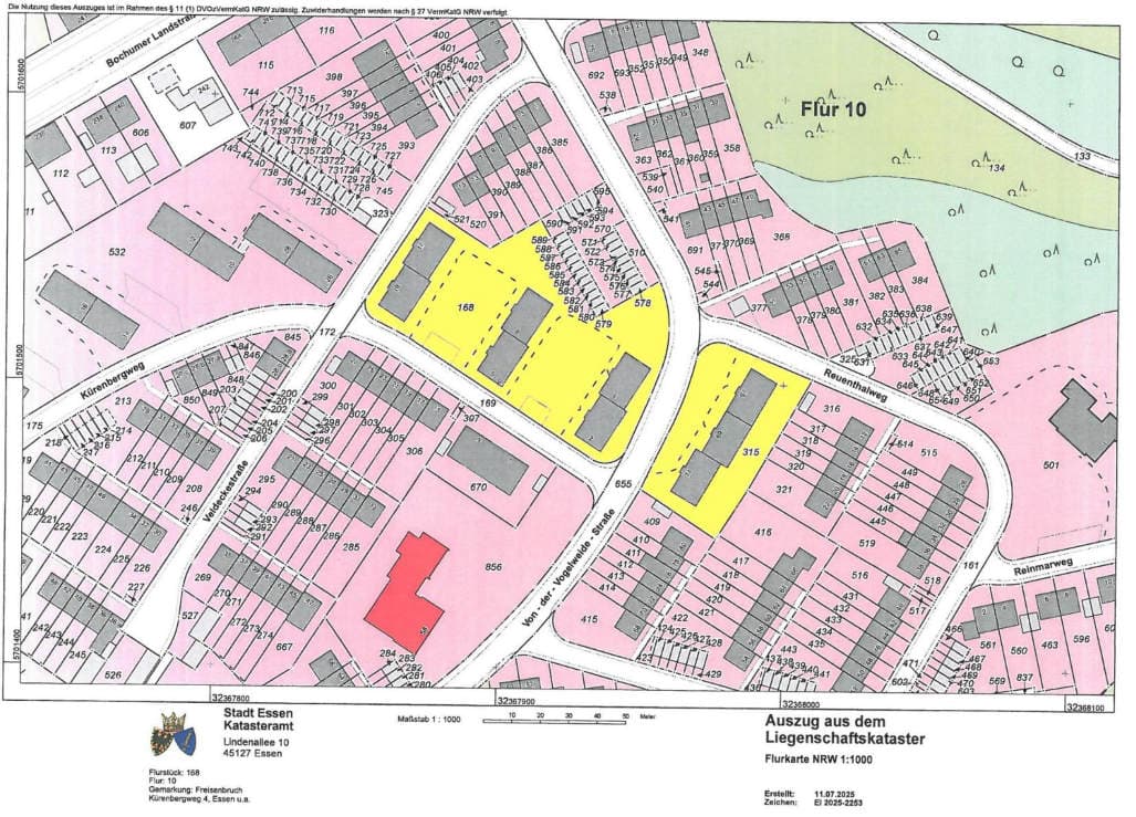
Bei dem zu bewertenden Objekt handelt es sich um eine unvermietete und eigen genutzte Eigentumswohnung im 2. Obergeschoss des Hauses Kürenbergweg 2, welches Teil einer Wohnanlage mit insgesamt 54 Eigentumswohnungen ist. Die Gesamtanlage besteht aus neun dreigeschossigen Mehrfamilienhäusern mit nicht ausgebauten Dachgeschossen, Baujahr 1961. Die beiden Flurstücke 168 + 315 haben eine Gesamtgröße von 7.315 m². Das Wohnungseigentum Nr. 48 hat eine Größe gem. Teilungserklärung von rd. 68 m² und besitzt eine normale Grundrissgestaltung mit Diele, Küche, Bad, Abstellraum, Wohnzimmer und 2 Schlafzimmer sowie eine Loggia. Eine Innenbesichtigung der Wohnung war nicht möglich,
Lage & Flurstücke
Kürenbergweg 2, 4, 6, 8, Verldeckerstr. 17, 19, Von-der-Vogelweide-Straße 67, 69, 71, Reuenthalweg, 45279 Essen, Nordrhein-Westfalen