
Beschreibung
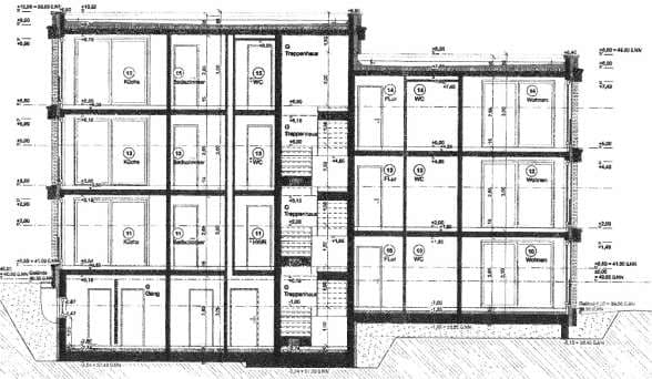
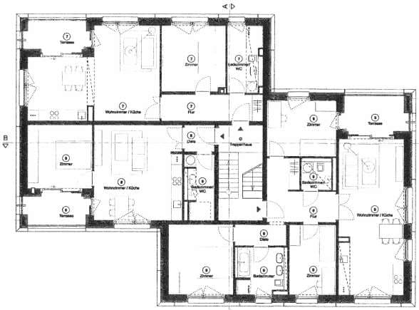
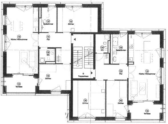
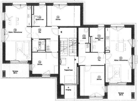
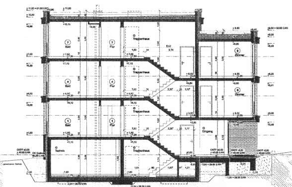
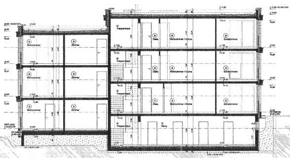
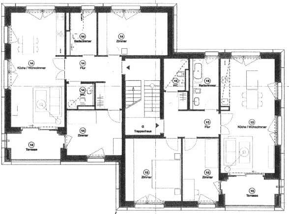
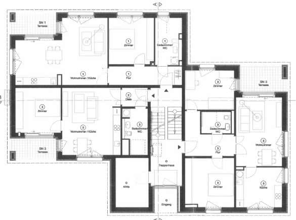
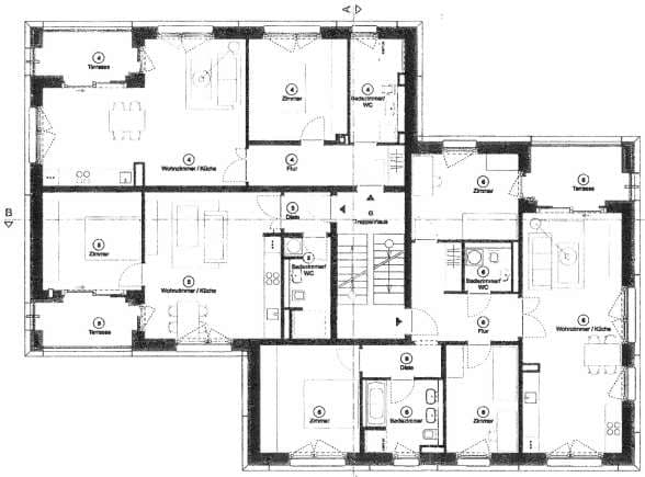
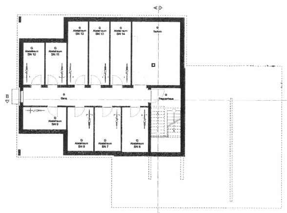
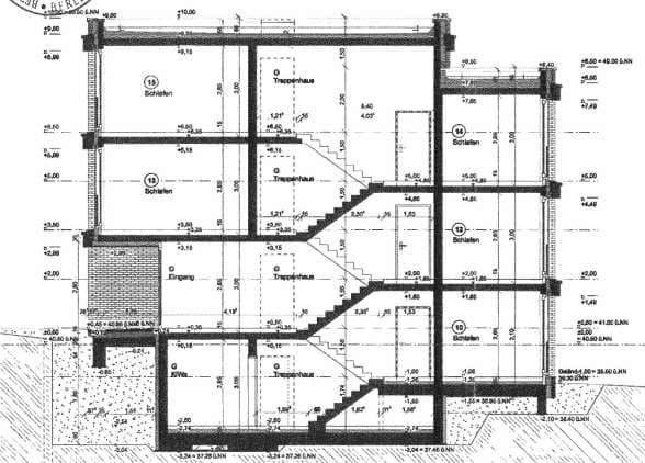
Mehrfamilienhausgrundstück in der Koenigsallee 16 I, 16 J, 14193 Berlin Bei den auf dem Grundstück aufstehenden Gebäuden handelt es sich um zwei teilunterkellerte 3-geschossige Mehrfamilienhäuser mit Flachdach und jeweils zwei um 1/2 Geschoss versetzten Gebäudeteilen mit separaten Treppenhausaufgängen. Das hintere Gebäude Königsallee 16 J (Haus A) weist 9 Wohnungen und das vordere Gebäude Koenigsallee 16 I (Haus B) weist 6 Wohnungen auf. Im Haus A befinden sich im EG, 1. OG, 2. OG jeweils drei Wohnungen. Im Haus B befinden sich im EG, 1. OG, 2. OG jeweils zwei Wohnungen. Die Wohnungen sind als 2 - bis 4 - Zimmerwohnungen mit Größen von 52,00 m² bis 99,63 m² Wohnfläche ausgelegt. Der Gebäudekomplex verfügt über eine Gas-Zentralheizung mit zentraler Warmwasserversorgung. Gesamtmietfläche: ca. 1.123,76 m² Grundstücksgröße: ca. 2.915 m² Baujahr 2019 - 2021 (Wohngebäude) Wegen der weiterer Einzelheiten wird auf das ausliegende Gutachten verwiesen (Stand: 09/2024).
Dokumente
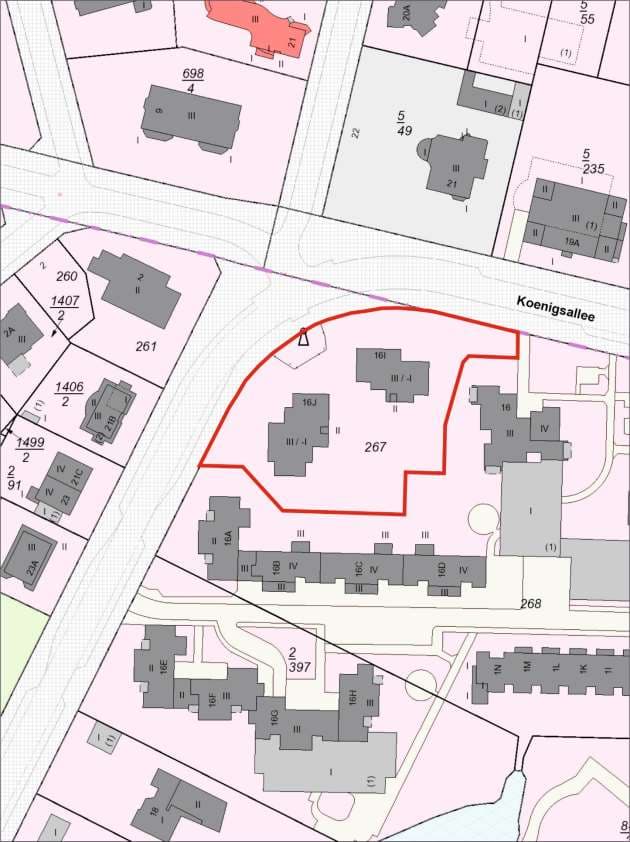
Lage & Flurstücke
Königsallee 16 I, 14193 Berlin, Berlin