
1 / 21
Beschreibung
Beschreibung:
Dokumente
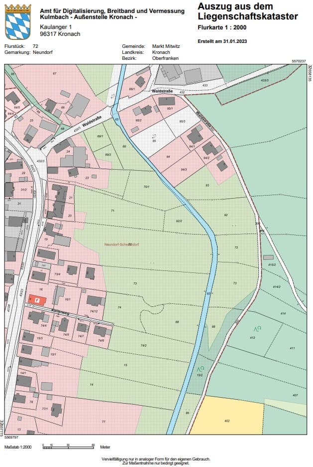
Lage & Flurstücke
Keine Koordinaten verfügbar
Neundorf 41 u. 44, 96268 Mitwitz, Neundorf, Bayern
Kostenrechner
Kostenrechner für Zwangsversteigerungen
Objektdaten
Verkehrswert:3.010.749 €
Bundesland:Bayern
Grunderwerbsteuer:3,5 %
Ihre Eingaben
€
€
Rechtlicher Hinweis: Diese Berechnung dient ausschließlich der Orientierung und stellt keine rechtliche, steuerliche oder finanzielle Beratung dar. Alle Angaben erfolgen ohne Gewähr. Für eine verbindliche Auskunft wenden Sie sich bitte an einen Rechtsanwalt, Steuerberater oder Ihre Bank.