
1 / 24
Beschreibung
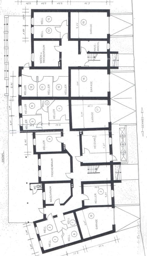
Laut Gutachten handelt es sich um ein nicht zu Wohnzwecken dienendes Teileigentum am nicht ausgebauten Spitzboden. Baujahr ca. 1936
Dokumente
Lage & Flurstücke
Keine Koordinaten verfügbar
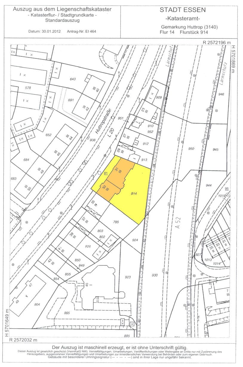
Huttropstraße 31, 33, 45138 Essen, Nordrhein-Westfalen
Kostenrechner
Kostenrechner für Zwangsversteigerungen
Objektdaten
Verkehrswert:19.000 €
Bundesland:Nordrhein-Westfalen
Grunderwerbsteuer:6,5 %
Ihre Eingaben
€
€
Rechtlicher Hinweis: Diese Berechnung dient ausschließlich der Orientierung und stellt keine rechtliche, steuerliche oder finanzielle Beratung dar. Alle Angaben erfolgen ohne Gewähr. Für eine verbindliche Auskunft wenden Sie sich bitte an einen Rechtsanwalt, Steuerberater oder Ihre Bank.