
Beschreibung
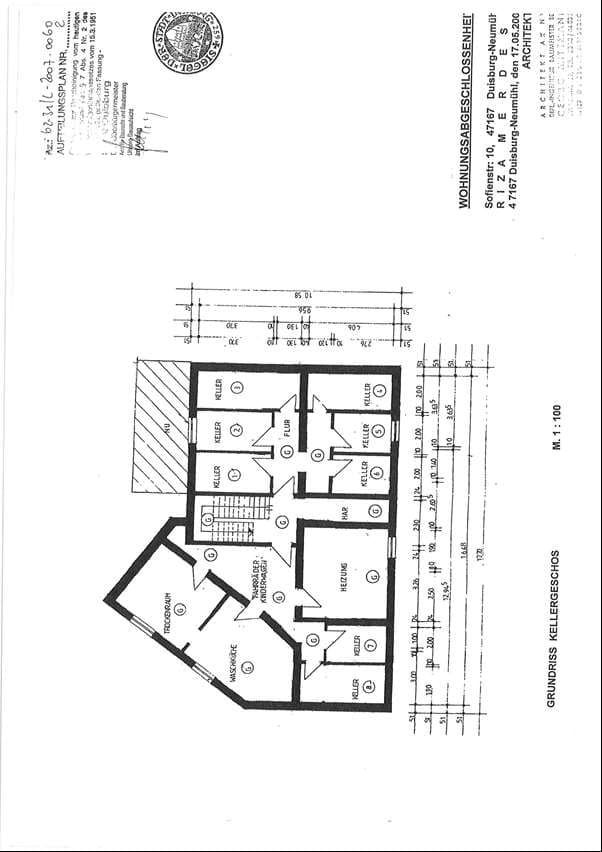
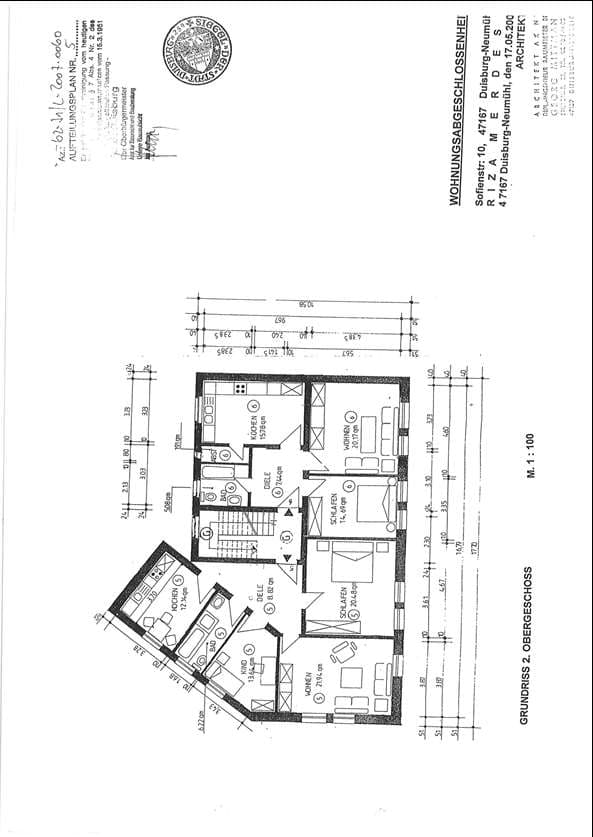
Es handelt sich um eine Eigentumswohnung im Ortsteil Neumühl. Die Wohnung liegt im 2. OG rechts eines III-geschossigen einseitig angebauten und unterkellerten Wohn- und Geschäftshauses. Das Objekt wurde 1906 errichtet (Teilwiederaufbau 1949), im Jahr 2007 gem. Wohnungseigentumsgesetz (WEG) in 8 Einheiten aufgeteilt und steht seit mehreren Jahren leer. Die gegenständliche Wohnung unterteilt sich gemäß Aufteilungsplan in Diele, Flur, Küche, Badezimmer, Wohnraum, Abstellraum und Schlafzimmer. Die Größe bemisst sich auf ca. 65,07 m². Eine Innenbesichtigung des Hauses und der Wohnung war nicht möglich. Das Gemeinschaftseigentum vermittelte bereits äußerlich einen verwahrlosten Gesamteindruck. Es bestehen erhebliche Bauschäden. Betreibender Gläubiger ist eine Behörde, daher werden keine Kontaktdaten veröffentlicht. Kontoverbindung Sicherheitsleistung: ZZJ Hamm IBAN: DE08 3005 0000 0001 4748 16 LB Hessen-Thüringen, Verwendungszweck: AG Duisburg, Geschäftszeichen, Sicherheit, Datum der Versteigerung
Lage & Flurstücke
Sofienstraße 10, 47167 Duisburg, Neumühl, Nordrhein-Westfalen