
1 / 4
Beschreibung
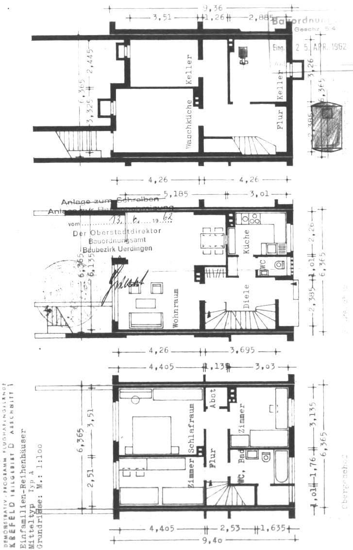
Laut Sacverständigengutachten handelt es sich um ein unterkellertes Reihenmittelhaus mit zwei Vollgeschossen und einer Größe von etwa 89 qm, Baujahr 1963. Kein Ansprechpartner! Sicherheitsleistung: Kontoverbindung ZZJ Hamm, IBAN: DE08 300 500 00000 147 4816, LB Hessen-Thüringen, Verwendungszweck: AG Krefeld, Geschäftszeichen, Sicherheit, Datum der Versteigerung
Lage & Flurstücke
Keine Koordinaten verfügbar
Breslauer Straße 99, 47829 Krefeld, Nordrhein-Westfalen
Kostenrechner
Kostenrechner für Zwangsversteigerungen
Objektdaten
Verkehrswert:245.000 €
Bundesland:Nordrhein-Westfalen
Grunderwerbsteuer:6,5 %
Ihre Eingaben
€
€
Rechtlicher Hinweis: Diese Berechnung dient ausschließlich der Orientierung und stellt keine rechtliche, steuerliche oder finanzielle Beratung dar. Alle Angaben erfolgen ohne Gewähr. Für eine verbindliche Auskunft wenden Sie sich bitte an einen Rechtsanwalt, Steuerberater oder Ihre Bank.