
Beschreibung
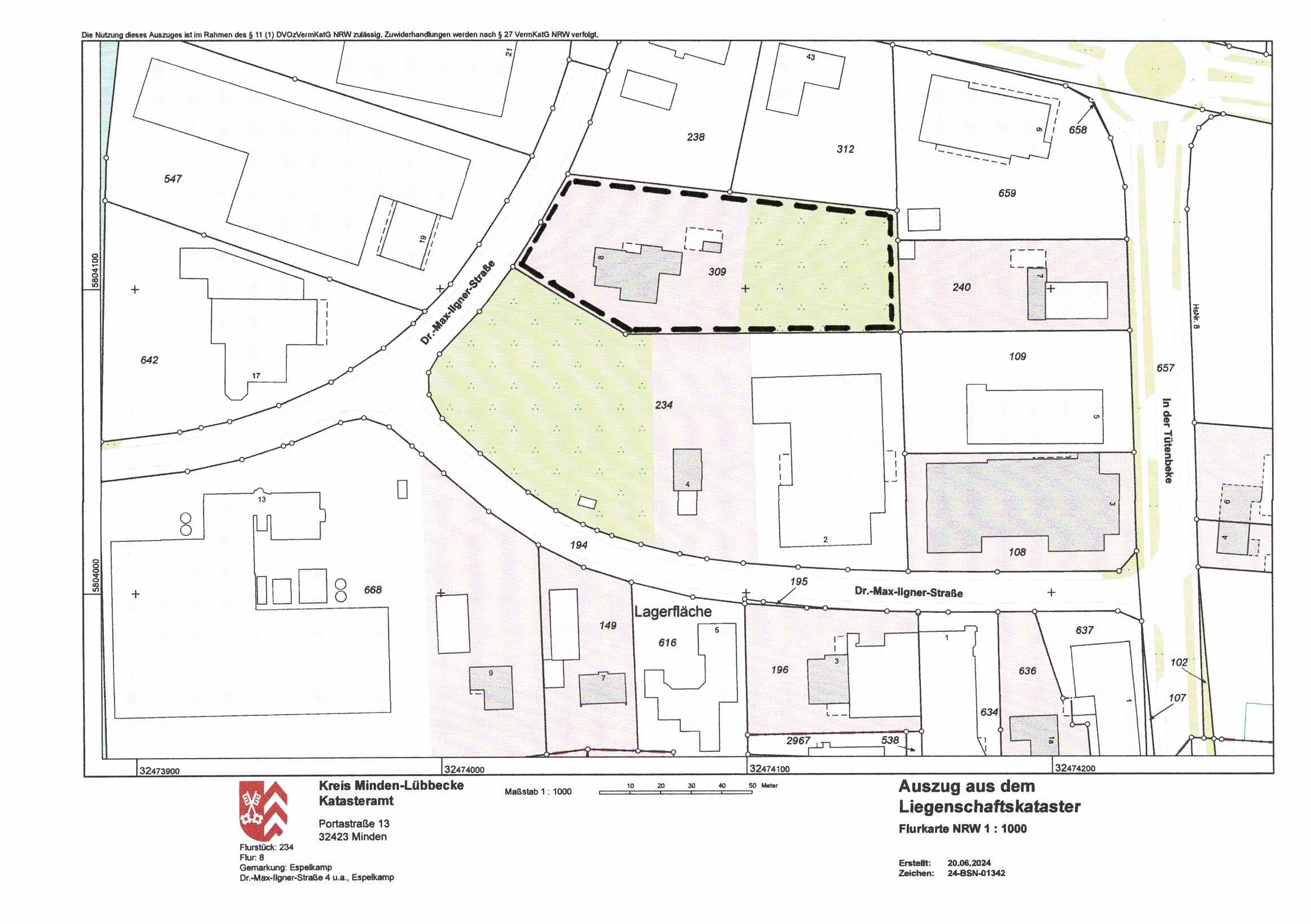
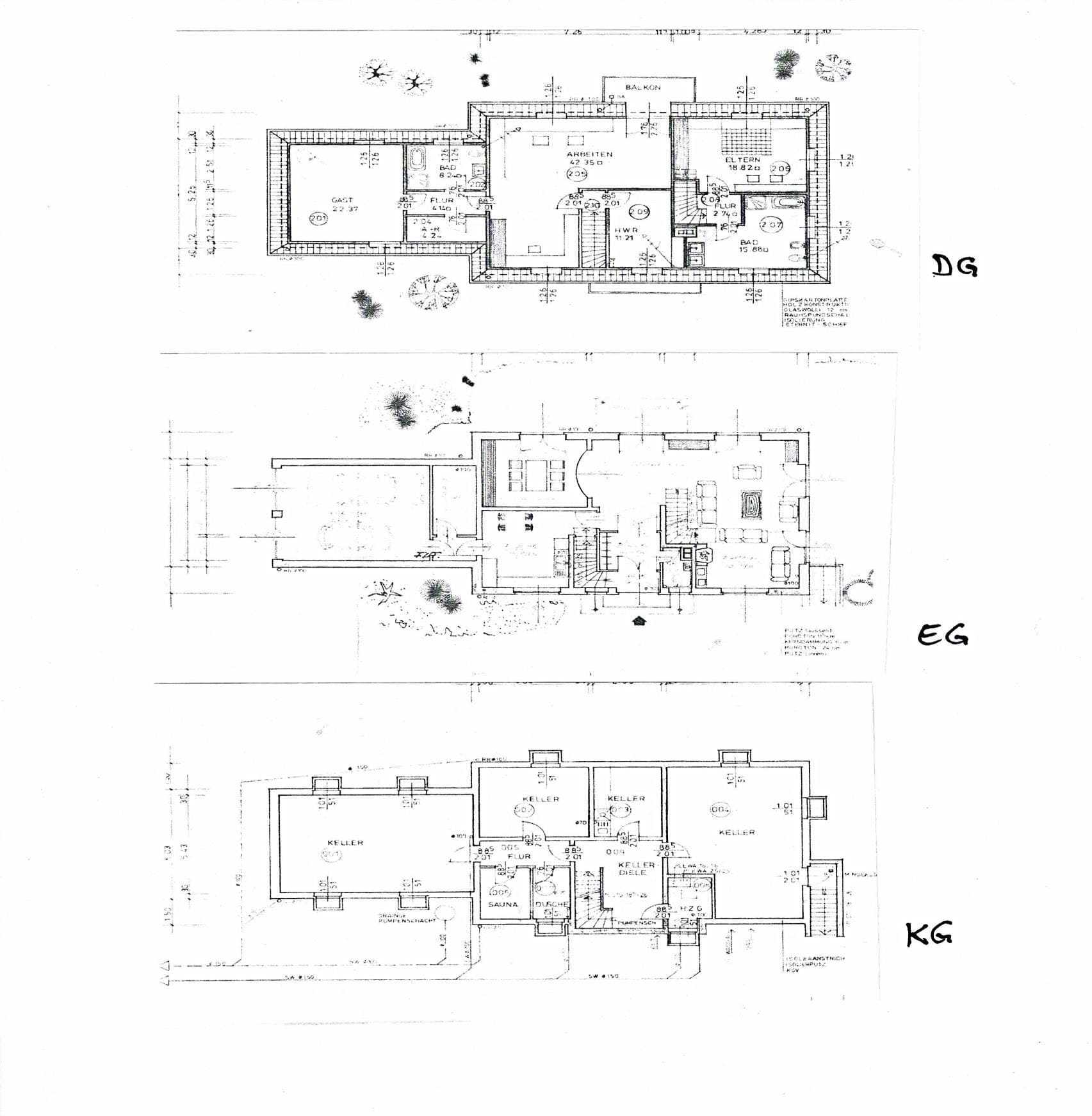
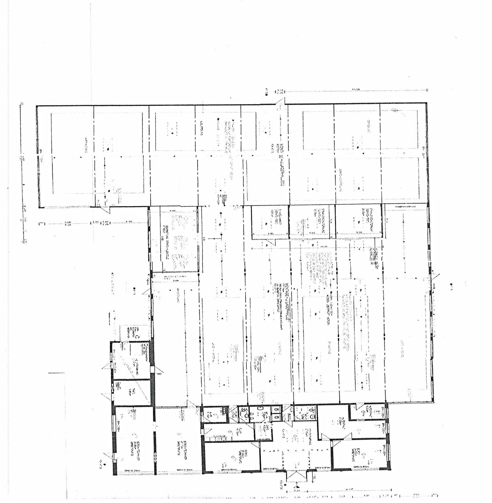
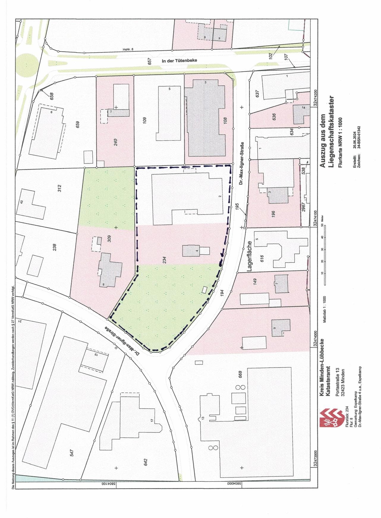
Laut Wertgutachten handelt es sich bei dem Grundstück Blatt 1966A Flur 8 Flurstück 309 um ein Gewerbegrundstück als Erbbaugrundstück in 32339 Espelkamp. Es ist mit einem Betriebsinhaberwohnhaus bebaut. Das ehemalige Bürogebäude wurde 2008 zu einem Wohnhaus umgebaut. Durch die bestehenden Baulasten ist die Nutzbarkeit des Grundstücks zu Wohnzwecken eingeschränkt. Es ist mit einem Erbbaurecht belastet. Das Gebäude ist nicht Teil der Versteigerung. Bei dem Grundstück Blatt 734A Flur 8 Flurstück 234 handelt es sich um ein Gewerbegrundstück mit Hallen und Büroteil sowie einem Betriebsinhaberwohnhaus in 32339 Espelkamp. Es liegen Baulasteneintragungen vor. Die Hallen sind aus den Jahren 1977 bzw. 1991 in Stahlrahmenbauweise errichtet. Der Bürotrakt ist in Mauerwerksmassivbauweise errichtet. Teilweise wurden Modernisierungen vorgenommen. Das Betriebsinhaberwohnhaus verfügt über eine Garage und ist in Mauerwerksmassivbauweise gebaut. Es ist vollständig unterkellert. Die Wohnfläche beträgt ca. 230qm. Laut Wertgutachten handelt es sich bei dem Grundstück Flur 8 Flurstück 309 um ein Gewerbegrundstück als Erbbaugrundstück in 32339 Espelkamp. Es ist mit einem Betriebsinhaberwohnhaus bebaut. Das ehemalige Bürogebäude wurde 2008 zu einem Wohnhaus umgebaut. Durch die bestehenden Baulasten ist die Nutzbarkeit des Grundstücks zu Wohnzwecken eingeschränkt. Es ist mit einem Erbbaurecht belastet. Das Gebäude ist nicht Teil der Versteigerung. Bei dem Grundstück Flur 8 Flurstück 234 handelt es sich um ein Gewerbegrundstück mit Hallen und Büroteil sowie einem Betriebsinhaberwohnhaus in 32339 Espelkamp. Es liegen Baulasteneintragungen vor. Die Hallen sind aus den Jahren 1977 bzw. 1991 in Stahlrahmenbauweise errichtet. Der Bürotrakt ist in Mauerwerksmassivbauweise errichtet. Teilweise wurden Modernisierungen vorgenommen. Das Betriebsinhaberwohnhaus verfügt über eine Garage und ist in Mauerwerksmassivbauweise gebaut. Es ist vollständig unterkellert. Die Wohnfläche beträgt ca. 230qm.
Lage & Flurstücke
Dr.-Max-Ilgner-Straße 2, 4 und 8, 32339 Espelkamp, Nordrhein-Westfalen