
Beschreibung
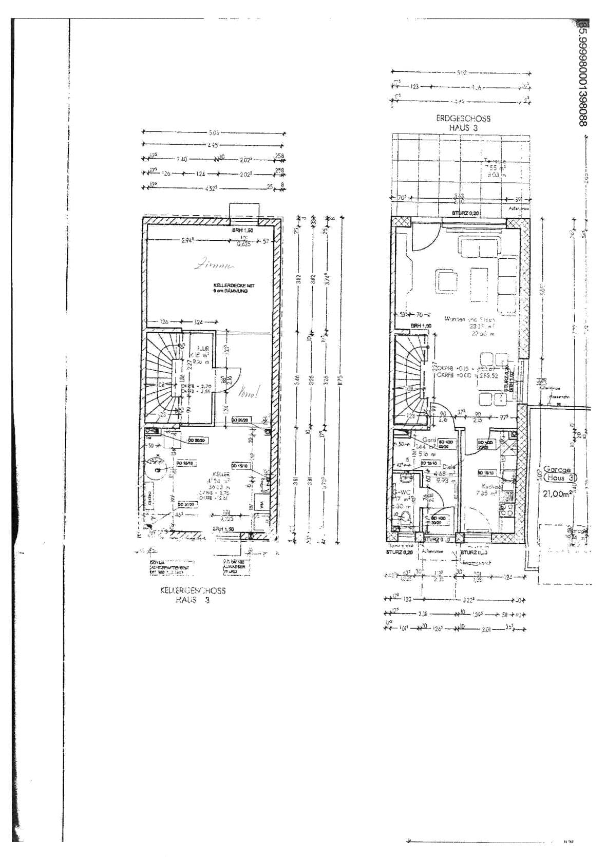
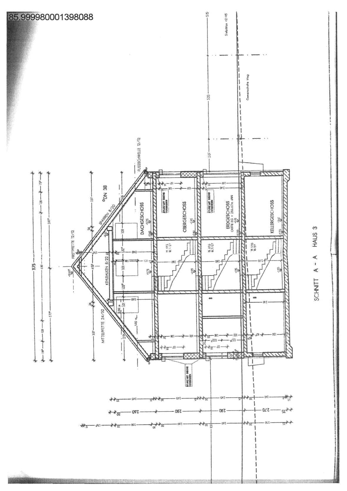
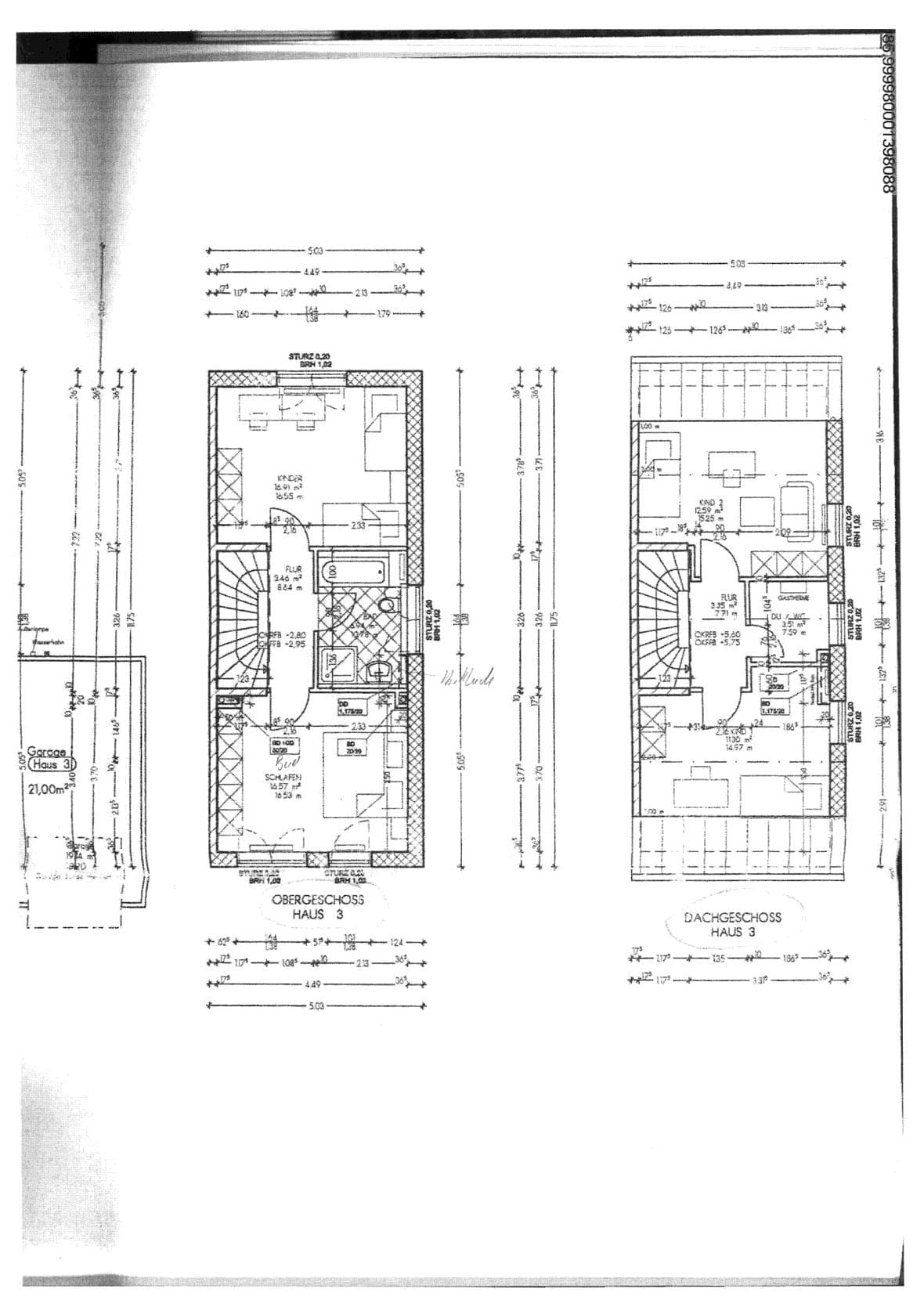
Lfd. Nr. 1 Objektbeschreibung/Lage (lt Angabe d. Sachverständigen): Zweigeschossiges Wohnhaus, voll unterkellert, mit ausgebautem Dachgeschoss in Form eines Reihen-Endhauses, Bj. 2013, Massivbau, Gasbrennwertkessel Baujahr Heizkessel vermutlich 2013, das Wohnhaus wird zum Bewertungsstichtag vom Eigentümer bewohnt, Nebengebäude Garage, Massivbau, auf die differenzierte Darstellung des Versteigerungsobjektes im Sachverständigengutachten wird verwiesen. Lfd. Nr. 2 Objektbeschreibung/Lage (lt Angabe d. Sachverständigen): Verkehrsfläche. Lfd. Nr. 3 Objektbeschreibung/Lage (lt Angabe d. Sachverständigen): Stellplatzfläche.
Lage & Flurstücke
Am Feldkreuz 7, 97084 Würzburg, Rottenbauer, Bayern