
1 / 27
Beschreibung
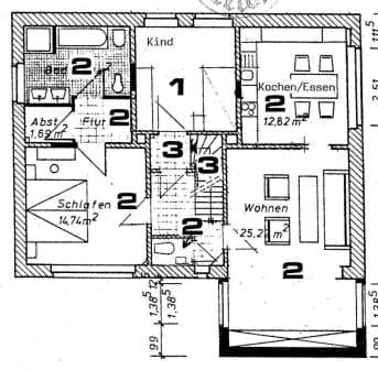
Laut Wertgutachten handelt es sich um eine Eigentumswohnung im Erdgeschoss und 1. OG eines in zwei Eigentumswohnungen aufgeteilten Wohnhauses (zweigeschossig, vollunterkellert, ausgebautes Dachgeschoss) mit Kellerraum und Garage. Wohnfläche ca.93 m². Baujahr 1887.
Dokumente
Lage & Flurstücke
Keine Koordinaten verfügbar
Leckeweg 44, 58644 Iserlohn, Nordrhein-Westfalen
Kostenrechner
Kostenrechner für Zwangsversteigerungen
Objektdaten
Verkehrswert:98.000 €
Bundesland:Nordrhein-Westfalen
Grunderwerbsteuer:6,5 %
Ihre Eingaben
€
€
Rechtlicher Hinweis: Diese Berechnung dient ausschließlich der Orientierung und stellt keine rechtliche, steuerliche oder finanzielle Beratung dar. Alle Angaben erfolgen ohne Gewähr. Für eine verbindliche Auskunft wenden Sie sich bitte an einen Rechtsanwalt, Steuerberater oder Ihre Bank.