
1 / 26
Beschreibung
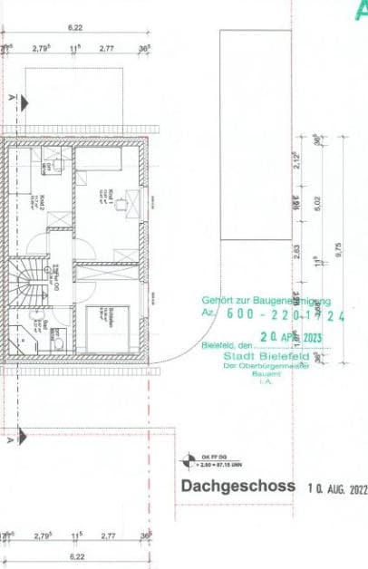
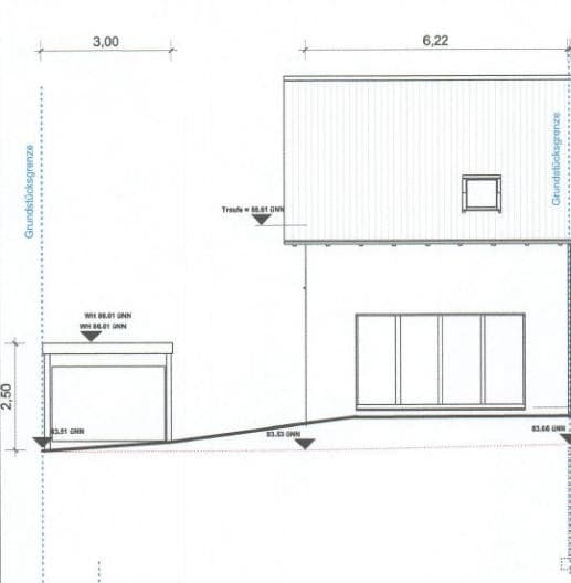
nicht unterkellerte, eingeschossige Doppelhaushälfte mit ausgebautem Dachgeschoss mit einer Wohnfläche von ca. 88 m². Das Bauvorhaben wurde 2023 begonnen und ist bislang nicht fertig gestellt, insbesondere Sanitär und Heizung sind nur als Rohinstallation vorhanden. Gläubiger: Volksbank Bielefeld-Gütersloh eG Kesselbrink 1 33602 Bielefeld Telefonnummer: 0521 544-0 Geschäftszeichen: 4v/5159221 Ansprechpartner: V. David Telefonnummer: 05241 104-218
Lage & Flurstücke
Keine Koordinaten verfügbar
Rabenhof 13e, 33609 Bielefeld, Heepen - Baumheide, Nordrhein-Westfalen
Kostenrechner
Kostenrechner für Zwangsversteigerungen
Objektdaten
Verkehrswert:300.000 €
Bundesland:Nordrhein-Westfalen
Grunderwerbsteuer:6,5 %
Ihre Eingaben
€
€
Rechtlicher Hinweis: Diese Berechnung dient ausschließlich der Orientierung und stellt keine rechtliche, steuerliche oder finanzielle Beratung dar. Alle Angaben erfolgen ohne Gewähr. Für eine verbindliche Auskunft wenden Sie sich bitte an einen Rechtsanwalt, Steuerberater oder Ihre Bank.