
1 / 30
Beschreibung
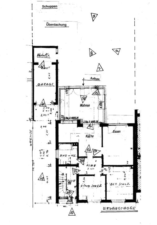
Laut Wertgutachten handelt es sich um ein 2-geschossiges unterkellertes Zweifamilienhaus (Doppelhaushälfte mit Satteldach mit teilausgebautem Dachgeschoss / Dachboden), nebst 1-geschossigem nicht unterkellerten rückwärtigen Anbau und Garage. Baujahr Wohnhaus und Garage: 1963/1964, Anbau: Baujahr nach Angabe genutzt / bewohnt 2021 / 2022. Wohnfläche insgesamt 185,23 qm. Nach Auskunft der Stadt Lünen ist die Errichtung und Ausführung des Anbaues an das Wohnhaus wegen fehlender Nachweise formell baurechtswidrig. Das Objekt wurde zum Stichtag eigengenutzt.
Lage & Flurstücke
Keine Koordinaten verfügbar
Weidenkamp 44, 44534 Lünen, Nordrhein-Westfalen
Kostenrechner
Kostenrechner für Zwangsversteigerungen
Objektdaten
Verkehrswert:335.000 €
Bundesland:Nordrhein-Westfalen
Grunderwerbsteuer:6,5 %
Ihre Eingaben
€
€
Rechtlicher Hinweis: Diese Berechnung dient ausschließlich der Orientierung und stellt keine rechtliche, steuerliche oder finanzielle Beratung dar. Alle Angaben erfolgen ohne Gewähr. Für eine verbindliche Auskunft wenden Sie sich bitte an einen Rechtsanwalt, Steuerberater oder Ihre Bank.