
1 / 13
Beschreibung
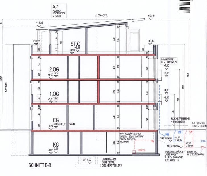
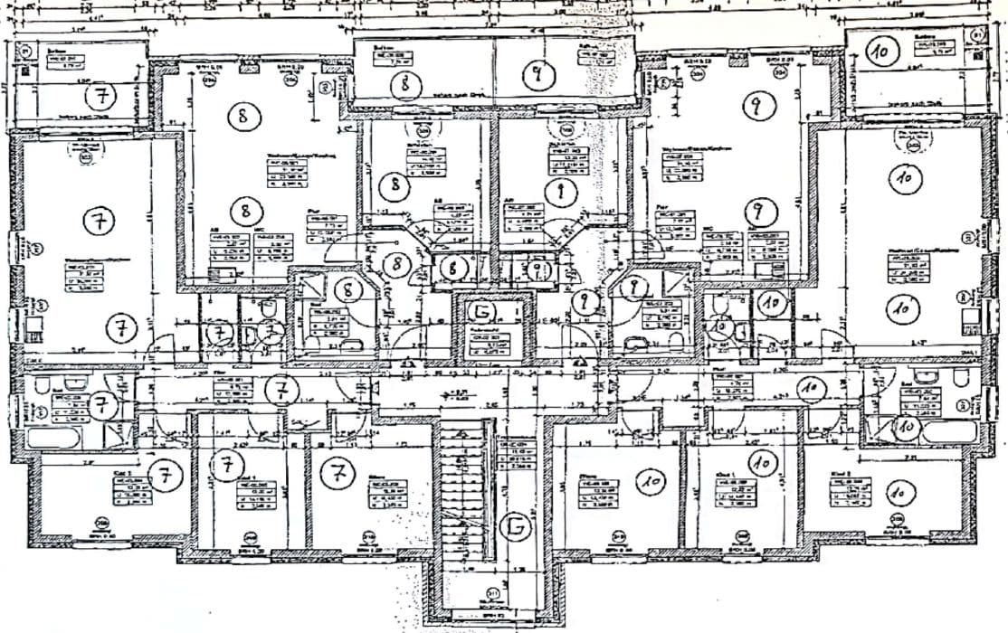
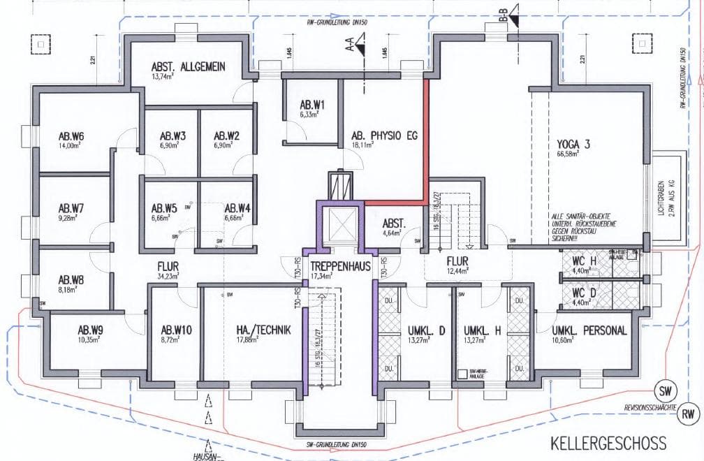
Laut Gutachten: Bei dem Versteigerungsobjekt handelt es sich um ein Wohnungseigentum mit Sondereigentum an der Wohnung im 2. OG vorne rechts nebst Kellerraum. Die maßgebliche Wohnung befindet sich im Gebäude Bielefelder Str. 167. Die Wohnung verfügt über eine Wohnfläche von 96 m². Die Bankverbindung bei einer Überweisung der Sicherheitsleistung lautet: Zahlungsempfängerin: Zentrale Zahlstelle Justiz Bankverbindung: Landesbank Hessen-Thüringen (Helaba) BIC: WELADEDD, IBAN: DE08 3005 0000 0001 4748 16 Verwendungszweck: AG Paderborn 014 K 10/25 Sicherheit 15.04.2026 + Name des Bieters, sofern abweichend vom Kontoinhaber
Lage & Flurstücke
Keine Koordinaten verfügbar
Bielefelder Straße 167, 33104 Paderborn, Schloß Neuhaus, Nordrhein-Westfalen
Kostenrechner
Kostenrechner für Zwangsversteigerungen
Objektdaten
Verkehrswert:280.000 €
Bundesland:Nordrhein-Westfalen
Grunderwerbsteuer:6,5 %
Ihre Eingaben
€
€
Rechtlicher Hinweis: Diese Berechnung dient ausschließlich der Orientierung und stellt keine rechtliche, steuerliche oder finanzielle Beratung dar. Alle Angaben erfolgen ohne Gewähr. Für eine verbindliche Auskunft wenden Sie sich bitte an einen Rechtsanwalt, Steuerberater oder Ihre Bank.