
1 / 2
Beschreibung
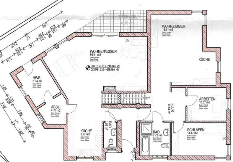
Lt. Gutachten handelt es sich um ein massiv errichtetes nicht unterkellertes Wohnhaus aus dem Jahr 2021/22. Laut Baugenehemigung liegt ein Zweifamilienhaus vor. Die Hauptwohnung hat rund 180 qm Wohnfläche, die 2. Wohneinheit rund 77 qm. Terrasse oder Freisitze sind nicht angelegt. Aufgrund baulicher Veränderung ist eine Nachtragsgenehmigung erforderlich. Eine Schlussabnahme ist bisher nicht erfolgt. Es liegt kein Energieausweis vor. Es gibt kein Telefon-, Kabel- und Internetanschluss. Heizart: Luftwärmepumpe. Laut Gutachten sind noch zahlreiche Fertigstellungsarbeiten notwendig.
Lage & Flurstücke
Keine Koordinaten verfügbar
Scheierland 5 / Am Forst 17, 59823 Arnsberg, Oeventrop, Nordrhein-Westfalen
Kostenrechner
Kostenrechner für Zwangsversteigerungen
Objektdaten
Verkehrswert:324.000 €
Bundesland:Nordrhein-Westfalen
Grunderwerbsteuer:6,5 %
Ihre Eingaben
€
€
Rechtlicher Hinweis: Diese Berechnung dient ausschließlich der Orientierung und stellt keine rechtliche, steuerliche oder finanzielle Beratung dar. Alle Angaben erfolgen ohne Gewähr. Für eine verbindliche Auskunft wenden Sie sich bitte an einen Rechtsanwalt, Steuerberater oder Ihre Bank.