
1 / 27
Beschreibung
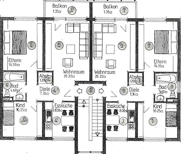
Bei dem Objekt handelt es sich um eine Eigentumswohnung im Obergeschoss nebst Speicherraum und Kellerraum verbunden mit den Sondernutzungsrechten an zwei PKW-Stellplätzen im Freien. Eine Innenbesichtigung konnte nicht erfolgen. Die Wohnfläche beträgt 68 m².
Lage & Flurstücke
Keine Koordinaten verfügbar
Franz-Martin-Straße 18, 00000, Nordrhein-Westfalen
Kostenrechner
Kostenrechner für Zwangsversteigerungen
Objektdaten
Verkehrswert:155.000 €
Bundesland:Nordrhein-Westfalen
Grunderwerbsteuer:6,5 %
Ihre Eingaben
€
€
Rechtlicher Hinweis: Diese Berechnung dient ausschließlich der Orientierung und stellt keine rechtliche, steuerliche oder finanzielle Beratung dar. Alle Angaben erfolgen ohne Gewähr. Für eine verbindliche Auskunft wenden Sie sich bitte an einen Rechtsanwalt, Steuerberater oder Ihre Bank.