
1 / 7
Beschreibung
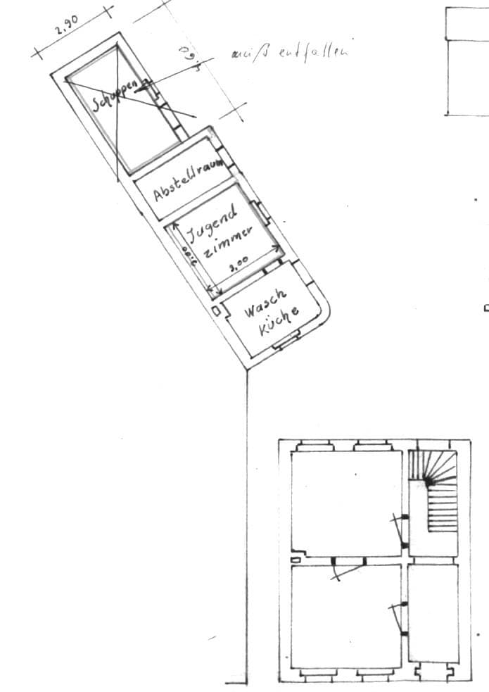
Lt. Sachverständigengutachten handelt es sich um ein Einfamilienhaus, Wohnfäche: ca. 79 qm, Ursprungsbaujahr: 1901. Das Badezimmer befindet sich außerhalb des Haues. Keine Ansprechperson. Sicherheitsleistung: Kontoverbindung: Zentrale Zahlstelle Justiz, IBAN: DE08 3005 0000 0001 4748 16, Landesbank Hessen-Thüringen, Verwendungszweck: AG Krefeld, Geschäftszeichen, Sicherheit, Datum der Versteigerung
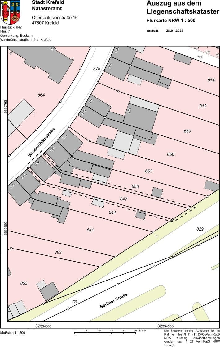
Lage & Flurstücke
Keine Koordinaten verfügbar
Windmühlenstraße 119a, 47800 Krefeld, Nordrhein-Westfalen
Kostenrechner
Kostenrechner für Zwangsversteigerungen
Objektdaten
Verkehrswert:205.000 €
Bundesland:Nordrhein-Westfalen
Grunderwerbsteuer:6,5 %
Ihre Eingaben
€
€
Rechtlicher Hinweis: Diese Berechnung dient ausschließlich der Orientierung und stellt keine rechtliche, steuerliche oder finanzielle Beratung dar. Alle Angaben erfolgen ohne Gewähr. Für eine verbindliche Auskunft wenden Sie sich bitte an einen Rechtsanwalt, Steuerberater oder Ihre Bank.