
Beschreibung
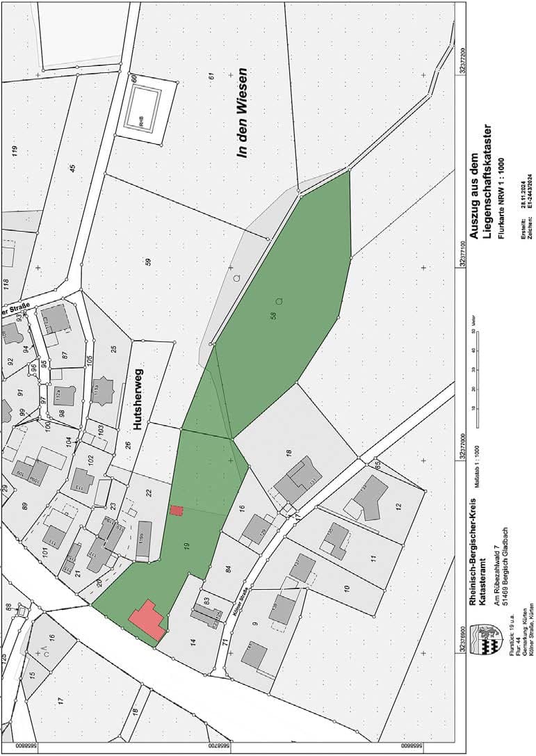
Anschrift: Kölner Str. 121, 51515 Kürten (OT Hutsherweg) Laut Gutachten handelt es sich um zwei zusammenhängende Flurstücke (teilweise Landschaftsschutzgebiet). Flurstück 19 wird überwiegend als "Baulandfläche (Im Innenbereich)", Größe ca. 1.441m², und "Grünland im Außenbereich", Größe ca. 1.615m² beschrieben. Flurstück 58 besteht aus einer ca. 630m² großen "Landwirtschaftsfläche (Im Außenbereich)" und "Wald (im Außenbereich)", Größe ca. 5.101m². Erschließung der Baulandteilfläche über die B506. Das Grundstück ist im Straßenbereich mit einer Scheune nebst Nebenanlagen bebaut. Es wurde der Abbruch der Gebäude zur Herstellung einer grundsätzlichen Verwertbarkeit des Grundstücks als erforderlich festgestellt. Laut Gutachter könnte es eventuell durch die Lagerung von Altfahrzeugen etc. auf dem Grundstück zu Bodenverunreinigungen gekommen sein. Der südwestlich angebaute Schuppen ist/war vermietet. Hinsichtlich des Zubehörs wurde die Beschlagnahme beendet, so dass dieses nicht mit versteigert wird. Ansprechpartner: Frau Petra Häck, Frau Monika Donnaloia anfragekoelnerstrasse121@web.de
Lage & Flurstücke
Kölner Straße 121 und In den Wiesen, 51515 Kürten, Hutsherweg, Nordrhein-Westfalen