
1 / 22
Beschreibung
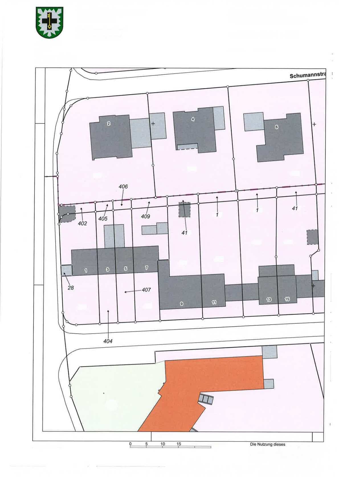
Es handelt sich um ein mit einem Reihenmittelhaus mit 5 Wohneinheiten bebautes Grundstück sowie eine unbebaute Verkehrsfläche. Baujahr: 1925.
Lage & Flurstücke
Keine Koordinaten verfügbar
Gluckstraße 9, 45966 Gladbeck, Zweckel, Nordrhein-Westfalen
Kostenrechner
Kostenrechner für Zwangsversteigerungen
Objektdaten
Verkehrswert:280.000 €
Bundesland:Nordrhein-Westfalen
Grunderwerbsteuer:6,5 %
Ihre Eingaben
€
€
Rechtlicher Hinweis: Diese Berechnung dient ausschließlich der Orientierung und stellt keine rechtliche, steuerliche oder finanzielle Beratung dar. Alle Angaben erfolgen ohne Gewähr. Für eine verbindliche Auskunft wenden Sie sich bitte an einen Rechtsanwalt, Steuerberater oder Ihre Bank.