
1 / 21
Beschreibung
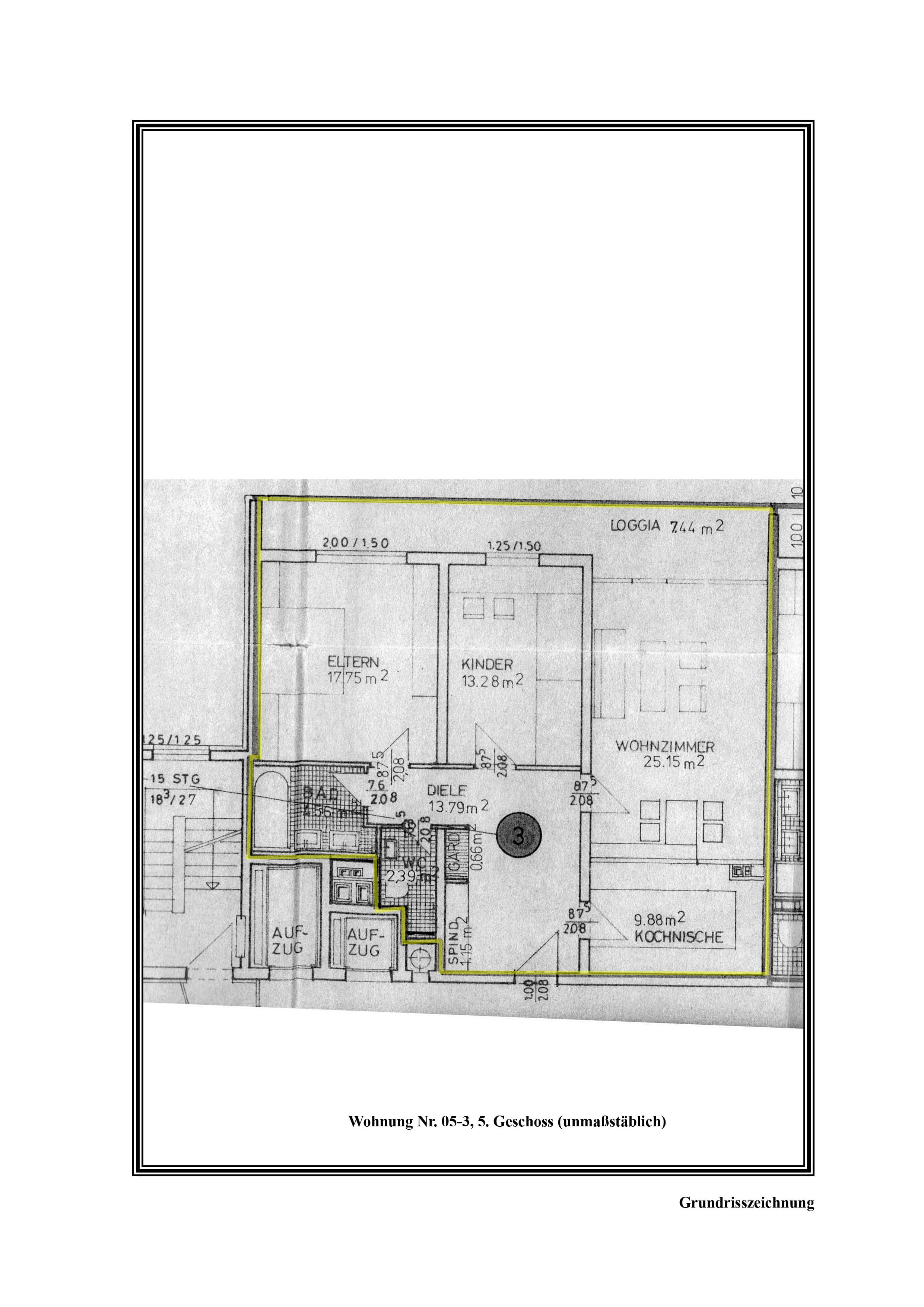
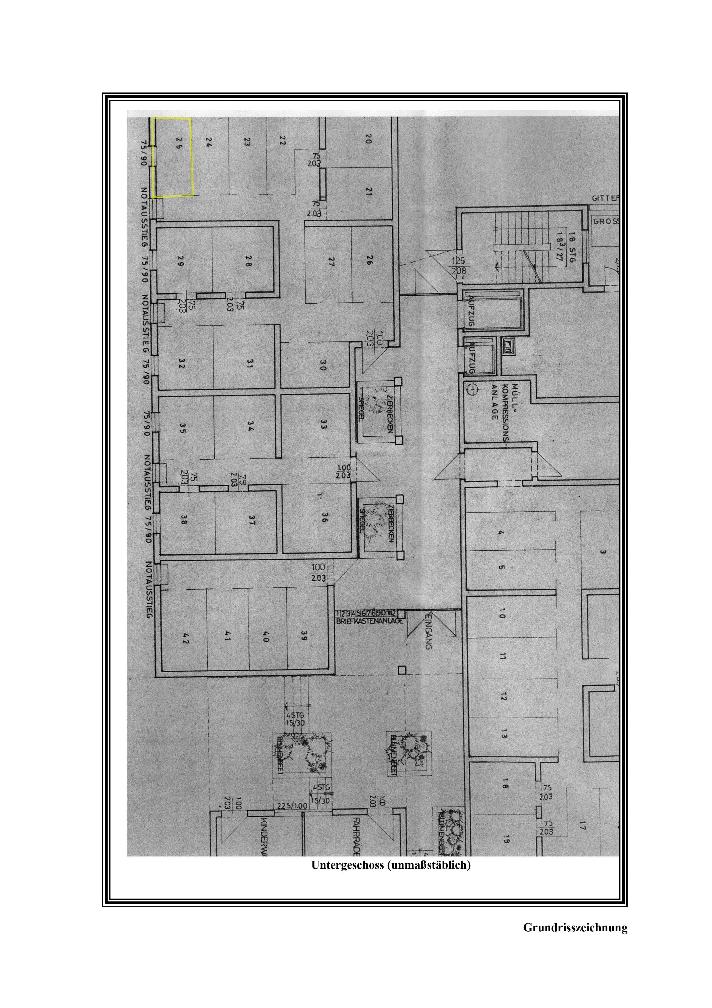
Es handelt sich um eine Eigentumswohnung im 5. Obergeschoss eines 12-geschossigen Mehrfamilienwohnhauses (insges. 48 WE), bestehend aus 3 Zimmern, Küche, Diele, Bad, WC und Balkon (Wohnung 05-3) und einem wohnungsergänzenden Kellerraum (Nr. 25) Wohnfläche: 92,54m²
Lage & Flurstücke
Keine Koordinaten verfügbar
Turmallee 5, 50126 Bergheim, Kenten, Nordrhein-Westfalen
Kostenrechner
Kostenrechner für Zwangsversteigerungen
Objektdaten
Verkehrswert:149.000 €
Bundesland:Nordrhein-Westfalen
Grunderwerbsteuer:6,5 %
Ihre Eingaben
€
€
Rechtlicher Hinweis: Diese Berechnung dient ausschließlich der Orientierung und stellt keine rechtliche, steuerliche oder finanzielle Beratung dar. Alle Angaben erfolgen ohne Gewähr. Für eine verbindliche Auskunft wenden Sie sich bitte an einen Rechtsanwalt, Steuerberater oder Ihre Bank.