
Beschreibung
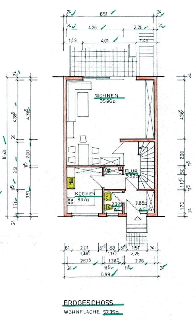
Laut Wertgutachten handelt es sich um A) BV Nr. 1: ein Grundstück, bebaut mit einem als Einfamilienhaus genutzten Reihenmittelhaus, II-geschossig mit -laut Sachverständigen- vermutlich ungenehmigt ausgebautem Dachgeschoss und teilweise ausgebautem Kellergeschoss, Ursprungsbaujahr 1979/Bewertungsbaujahr 1985, ca. 113 m² Wfl. Dem Sachverständigen wurde eine Innenbesichtigung nicht ermöglicht. Eine Nutzung des südwestlich gelegenen Privatwegs (fremdes Flurstück) ist nicht dinglich gesichert. B) BV Nr. 2: ein Grundstück, bebaut mit einer Garage (Fertiggarage) - Teil eines Garagenhofs. Eine Besichtigung konnte durch den Sachverständigen nicht erfolgen. C) BV Nr. 3/zu 1: einen Miteigentumsanteil an einem Weg (Flurstück 381) - Zuwegung zum Reihenmittelhaus. D) BV Nr. 5/zu 2: einen Miteigentumsanteil an einem Garagenhof (Flurstück 444) - Zuwegung zur Garage Die Einsichtnahme des Gutachtens nebst allen Anlagen wird angeraten! Die Einzelwerte betragen: - Gemarkung Horst Blatt 713, lfd. Nr. 1: 259.000,00 € - Gemarkung Horst Blatt 713, lfd. Nr. 2: 6.000,00 € - Gemarkung Horst Blatt 713, lfd. Nr. 3/zu 1: 3.000,00 € - Gemarkung Horst Blatt 713, lfd. Nr. 5/zu 2: 3.000,00 €
Dokumente
Lage & Flurstücke
Coburgerstraße 51, 45899 Gelsenkirchen, Horst, Nordrhein-Westfalen