
1 / 34
Beschreibung
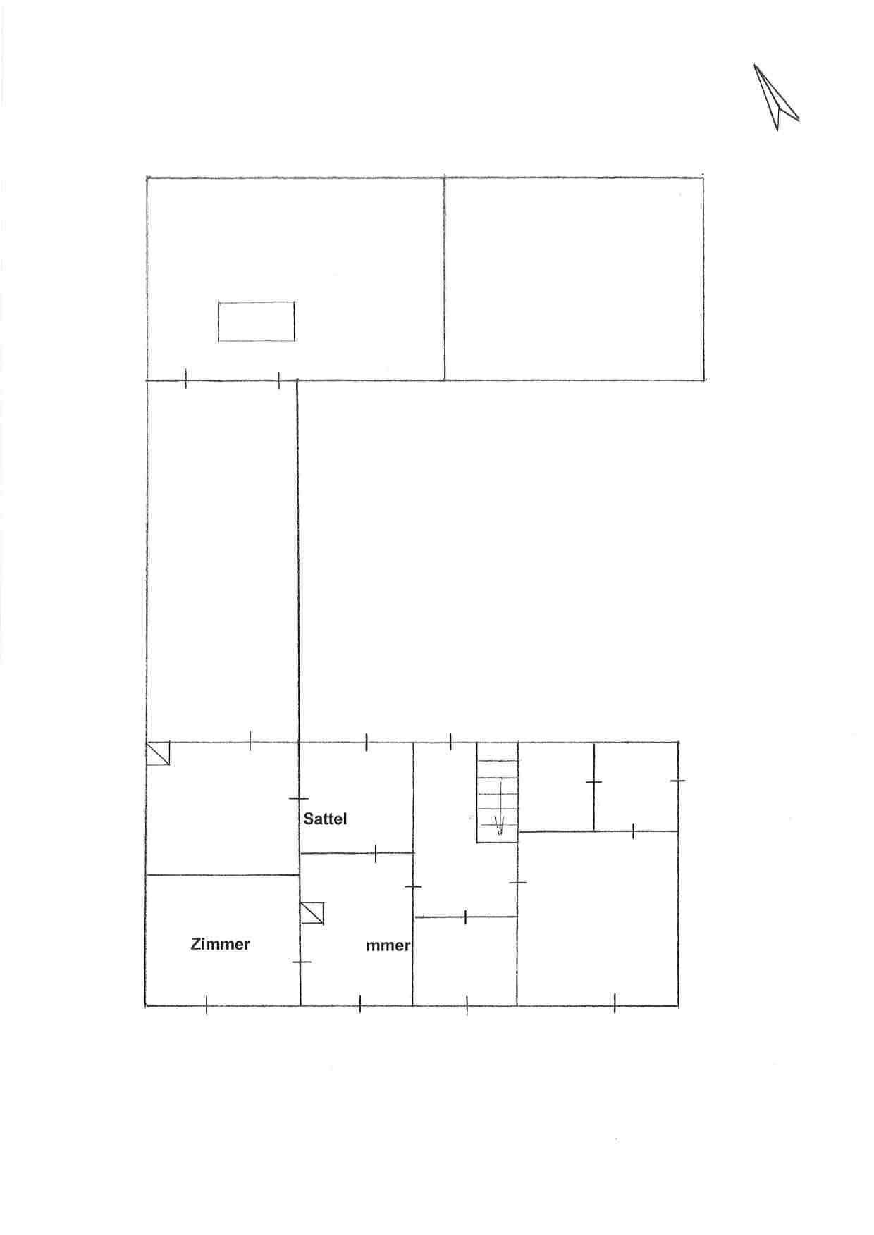
Wohnhaus mit Zwischenanbau, einseitig angebautes, nicht unterkellertes, zweigeschossiges Fachwerkgebäude mit Satteldach und nicht ausgebautem Dachgeschoss sowie eingeschossigem Mauerwerksanbau mit Pultdach und nicht ausgebautem Dachgeschoss, Bj. wahrscheinlich vor 1900, Teilsanierungen 1995/96 und 2008, Wohnfläche 188,38 m²; Scheune, eingeschossiger Fachwerkbau mit Satteldach Drempelgeschoss sowie eingeschossigem Pultdach, Bj. wahrscheinlich vor 1900, Teilsanierung um 1985, Nutzfläche 37,75 m²; Stallanbau, eingeschossiger Massivbau mit Pultdach, Bj. wahrscheinlich vor 1900, Nutzfläche 35,54 m²; leerstehend, diverse Mängel, die Einsichtnahme ins Gutachten wird empfohlen;
Lage & Flurstücke
Keine Koordinaten verfügbar
Kranichfelder Straße 16, 99310 Arnstadt, Achelstädt, Thüringen
Kostenrechner
Kostenrechner für Zwangsversteigerungen
Objektdaten
Verkehrswert:88.000 €
Bundesland:Thüringen
Grunderwerbsteuer:5,0 %
Ihre Eingaben
€
€
Rechtlicher Hinweis: Diese Berechnung dient ausschließlich der Orientierung und stellt keine rechtliche, steuerliche oder finanzielle Beratung dar. Alle Angaben erfolgen ohne Gewähr. Für eine verbindliche Auskunft wenden Sie sich bitte an einen Rechtsanwalt, Steuerberater oder Ihre Bank.