
1 / 49
Beschreibung
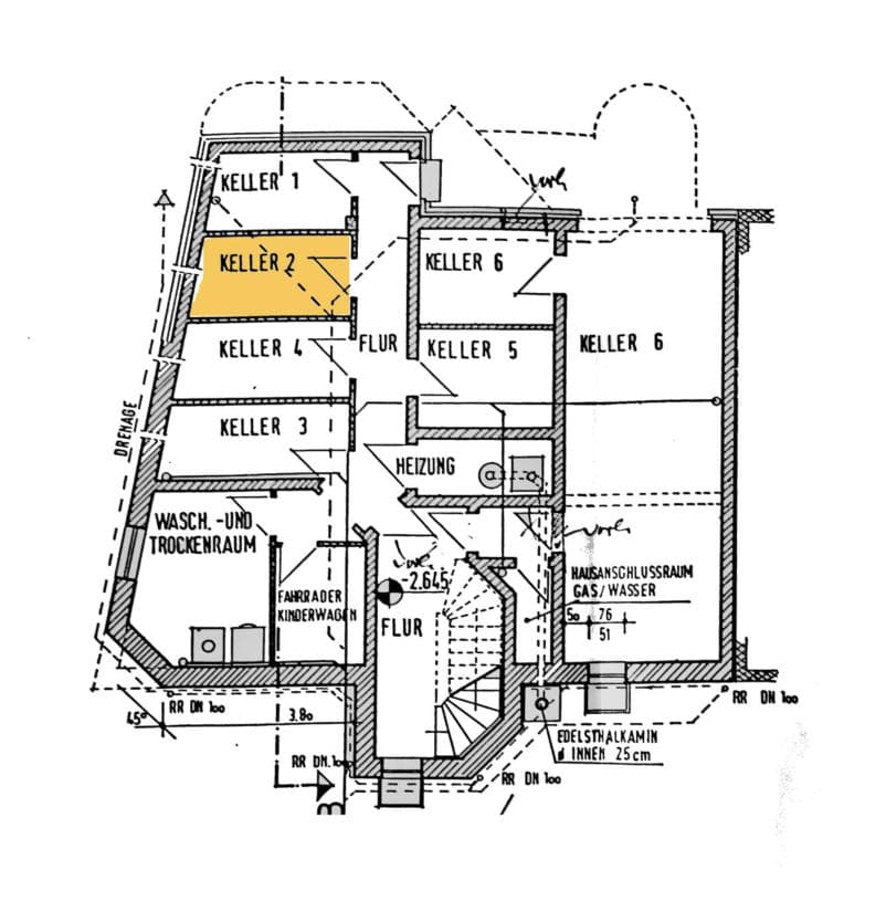
Laut Wertgutachten handelt es sich um nicht mehr bewohntes Wohnungseigentum im 1. OG in einem unterkellerten Mehrfamilienwohnhaus mit 5 Wohnungseinheiten. Die Wohnung besteht aus Wohnzimmer mit Zugang zum Balkon Nr. 1, Schlafzimmer, 2 Kinderzimmer, eines davon mit Zugang zum Balkon Nr.2 , Küche, Diele, Bad und Gäste-WC. Die Wohnfläche beträgt insgesamt ca. 107 m². Wände und Decken der Wohnung sind durch Tabakkonsum deutlich bräunlich verfärbt. Baujahr ca. 1983. Der Wohnung ist ein Kellerraum und ein KFZ-Stellplatz zugeordnet.
Lage & Flurstücke
Keine Koordinaten verfügbar
Winkhauser Straße 31, 58509 Lüdenscheid, Nordrhein-Westfalen
Kostenrechner
Kostenrechner für Zwangsversteigerungen
Objektdaten
Verkehrswert:174.000 €
Bundesland:Nordrhein-Westfalen
Grunderwerbsteuer:6,5 %
Ihre Eingaben
€
€
Rechtlicher Hinweis: Diese Berechnung dient ausschließlich der Orientierung und stellt keine rechtliche, steuerliche oder finanzielle Beratung dar. Alle Angaben erfolgen ohne Gewähr. Für eine verbindliche Auskunft wenden Sie sich bitte an einen Rechtsanwalt, Steuerberater oder Ihre Bank.