
1 / 179
Beschreibung
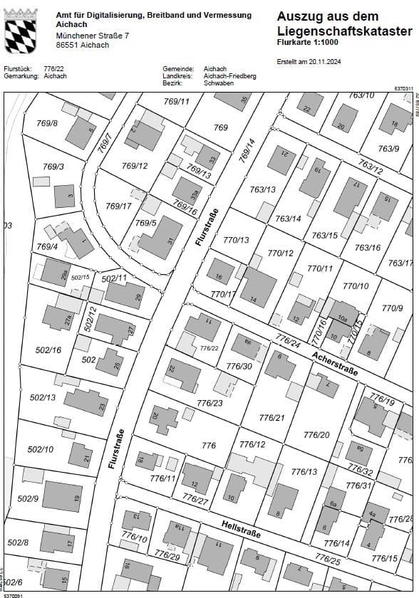
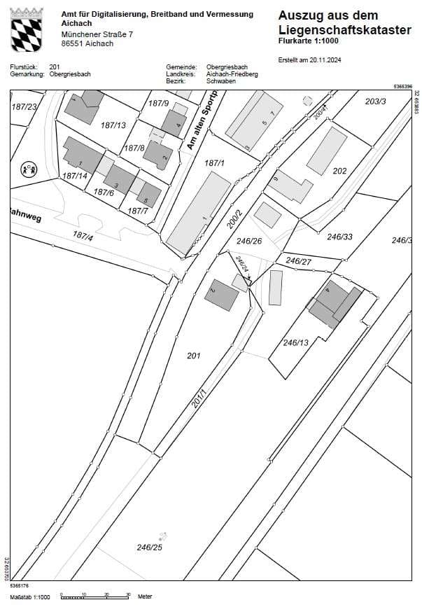
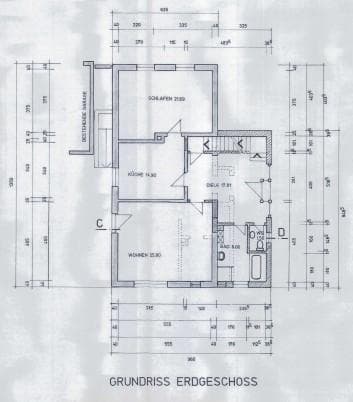
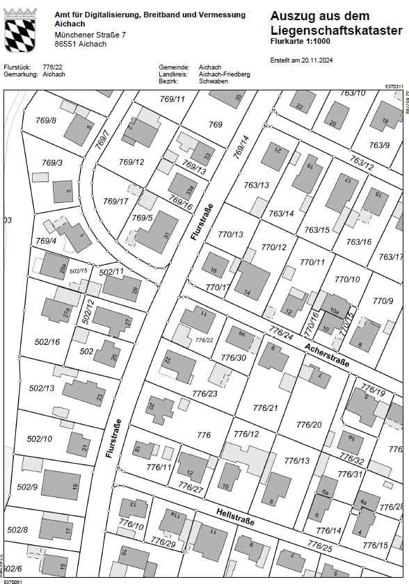
Lfd. Nr. 1: unterkellertes Zweifamilienhaus mit Garage (4 ZKB im EG und 3 ZKB im 1. OG) Baujahr: 1964; Wohnfläche ca. 151 m²; Grundstücksgröße 1.702 m² Lage: Am Bahnhof 2, 86573 Obergriesbach Hinweis: Die Garage befindet sich mit 7 m² auf dem Nachbargrundstück (FlNr. 246/24) Lfd. Nr. 2: unterkellertes Einfamilienhaus mit Anbau und Doppelgarage Baujahr 1935, Anbau 1961 und 1996; Baujahr Garage 1982, Anbau 1985; Wohnfläche ca. 119 m²; Grundstücksfläche 505 m² Lage: Acherstraße 11, 86551 Aichach
Dokumente
Lage & Flurstücke
Keine Koordinaten verfügbar
Am Bahnhof 2, 86573 Obergriesbach; Ackerstraße 11, 86551 Aichach, Bayern
Kostenrechner
Kostenrechner für Zwangsversteigerungen
Objektdaten
Verkehrswert:581.000 €
Bundesland:Bayern
Grunderwerbsteuer:3,5 %
Ihre Eingaben
€
€
Rechtlicher Hinweis: Diese Berechnung dient ausschließlich der Orientierung und stellt keine rechtliche, steuerliche oder finanzielle Beratung dar. Alle Angaben erfolgen ohne Gewähr. Für eine verbindliche Auskunft wenden Sie sich bitte an einen Rechtsanwalt, Steuerberater oder Ihre Bank.