
Beschreibung
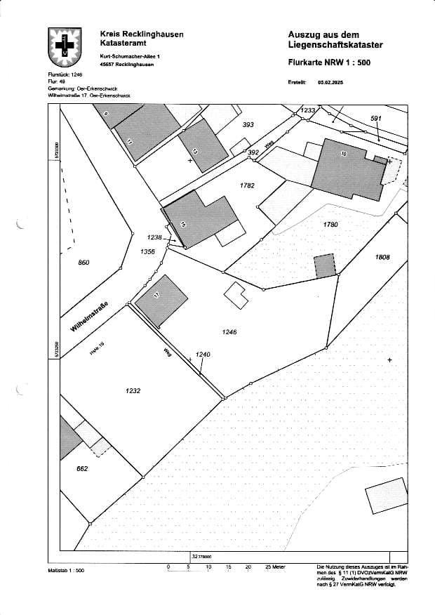
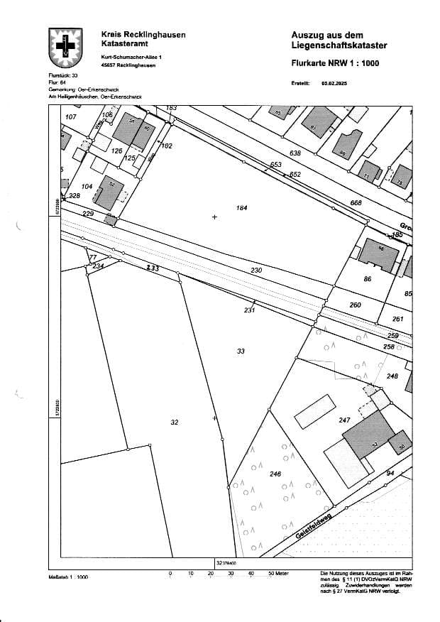
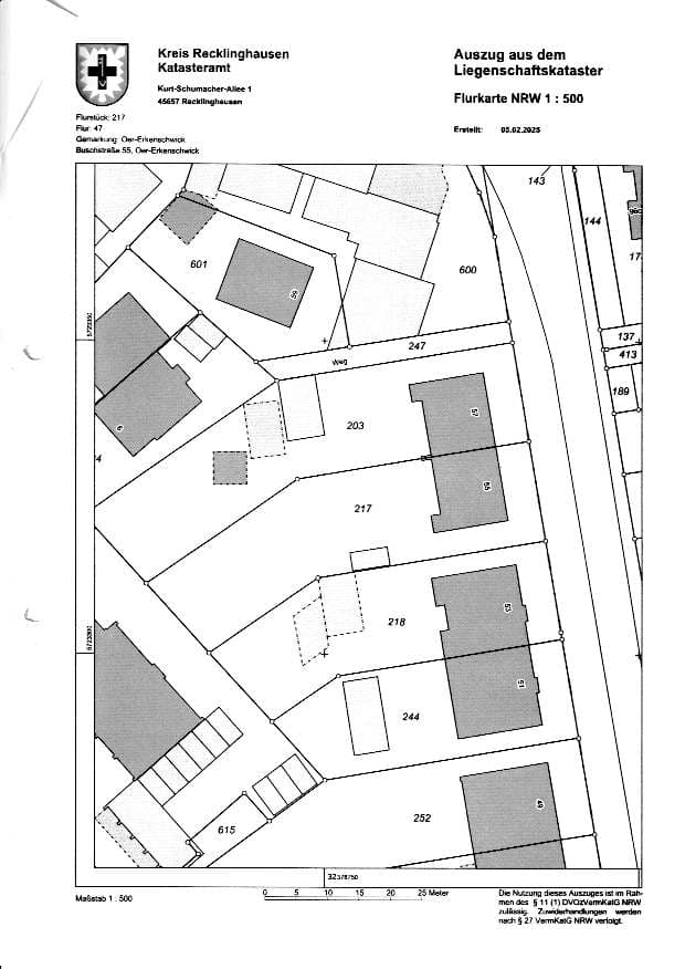
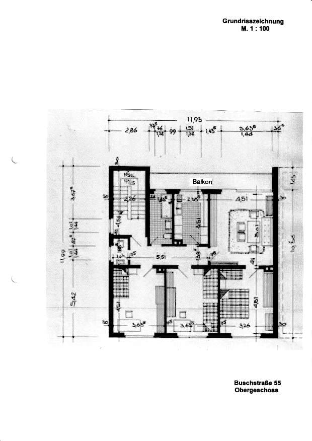
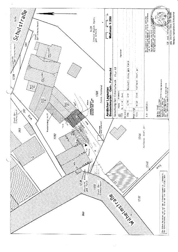
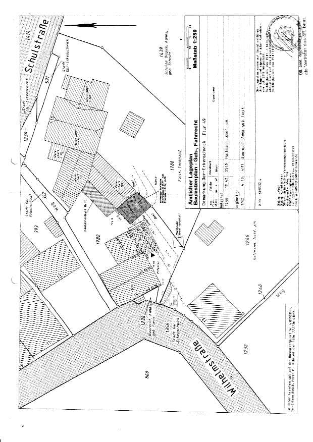
Das Flurstück Nr. 33 ist laut Gutachten nicht bebaut. Es liegt brach. Das Grundstück ist aufgrund seiner Lage nach § 35 BauGB - Außenbereich - zu beurteilen. Im Flächennutzungsplan ist es als Wohnbaufläche ausgewiesen und daher als Bauerwartungsland anzusehen. Das Flurstück Nr. 184 ist laut Gutachten nicht bebaut. Im Flächennutzungsplan ist es als Wohnbaufläche ausgewiesen. Die Bebaubarkeit des Grundstücks bzw. die planungsrechtliche Grundstücksqualität richtet sich somit nach § 34 BauGB. Vor diesem Hintergrund und aufgrund der vorhandenen Bebauung an der Groß-Erkenschwicker-Straße ist es als Bauland einzustufen. Das Flurstück Nr. 1246 ist laut Gutachten bebaut mit einem Fachwerkhaus und zwei Stallgebäuden. Das Wohnhaus (Wohnfläche ca. 119 m²) wird als Kindertagespflegeeinrichtung genutzt. Das Mietverhältnis begann am 01.01.2019 und endet am 31.12.2038. Das Flurstück Nr. 217 ist mit einem Dreifamilienhaus und einer Fertiggarage bebaut. Die Wohnflächen betragen insgesamt ca. 272 m²; die Nutzfläche im Keller beträgt ca. 90 m². Die Wohnungen sind zumindest teilweise vermietet. Ein Ansprechpartner soll nicht benannt werden.
Dokumente
Lage & Flurstücke
Am Heiligenhäuschen, 00000, Nordrhein-Westfalen