
Beschreibung
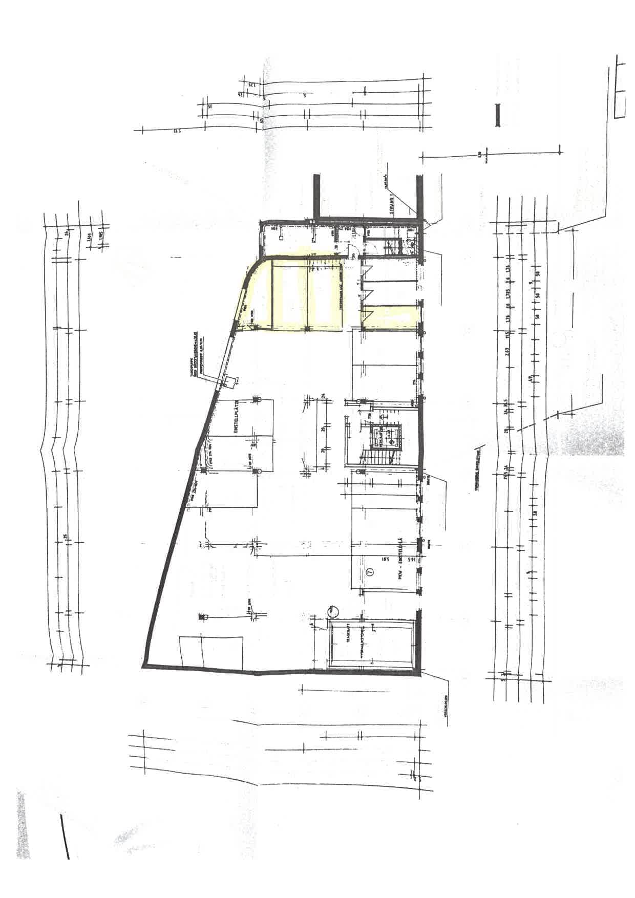
Die beiden Einheiten liegen in einem voll unterkellertem 4geschossigen Wohn- und Bürohaus mit Tiefgarage in Düsseldorf Unterbilk Gilbachstr.3. mit einer Grundstücksgröße von 601 qm. Baujahr 1960 mit späteren Teilmodernisierungen. Die Einheit 10 liegt im Erdgeschoss links und die Einheit 11 liegt im Erdgeschoss rechts. Teileigentum Nr. 10 , im Erdgeschoss links gelegen, mit folgender Aufteilung und Nutzfläche entsprechend Zeichnungen der Abgeschlossenheit: 4 Büroräume, Besprechungsraum, Empfang, Garderobe, WC-Anlagen, Vorraum mit rd. 262 m2 Größe sowie ein Kellerraum. Teileigentum Nr. 11 , im Erdgeschoss rechts gelegen, mit folgender Aufteilung und Nutzfläche entsprechend Zeichnungen der Abgeschlossenheit: 4 Büroräume, Besprechungsraum, Küche, WC-Anlagen, Vorraum mit rd. 172 m2 Größe sowie ein Kellerraum. Die überwiegenden Innenwände sind abgebrochen und im Bereich über den Sanitärbereichen der Einheiten ist ein Wanddurchbruch vorhanden. Den Einheiten sind Sondernutzungsrechte an Stellplätzen zugewiesen. Sofern Sicherheitsleistung durch Überweisung erfolgen soll, ist diese spätestens 10 Tage vor dem Versteigerungstermin auf das Konto der Zentralen Zahlstelle der Justiz bei der Landesbank Hessen-Thüringen IBAN: DE08 3005 0000 0001 4748 16; BIC: WELADEDD zu veranlassen. Dabei sind als Verwendungszweck neben dem Stichwort „Sicherheit AG Düsseldorf“ auch der Tag des Versteigerungstermins und das Aktenzeichen anzugeben.
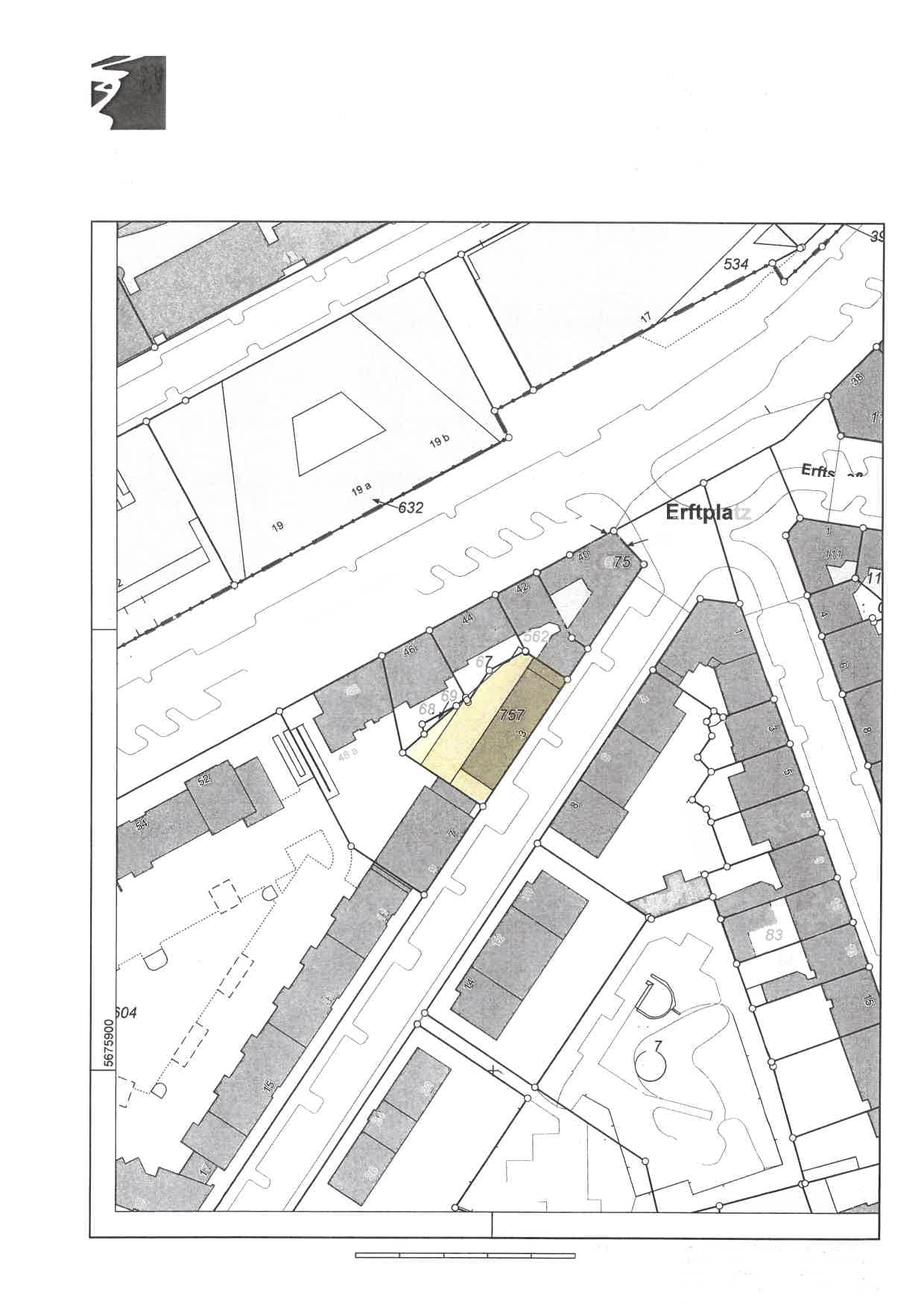
Lage & Flurstücke
Gilbachstraße 3, 40219 Düsseldorf, Unterbilk, Nordrhein-Westfalen