
1 / 18
Beschreibung
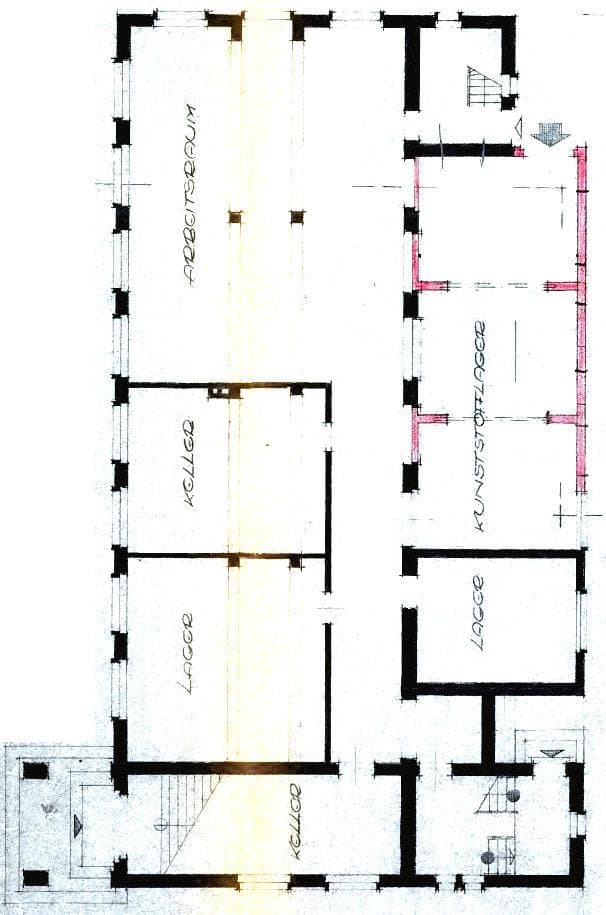
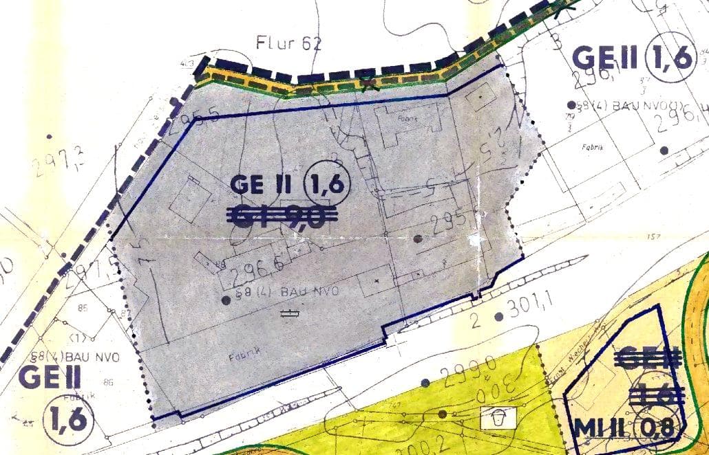
Laut Wertgutachten handelt es sich um ein 1.734 m² großes Grundstück (Flurstück 203) mit einem ursprünglich zweigeschossigen Gebäude und ein Splittergrundstück in 51545 Waldbröl-Hermesdorf, Escherweg 3. Das Gebäude mit einer Wohn-/Nutzfläche von ca. 632 m² wurde um 1950 als Fabrik errichtet und ein Teil einige Jahre später um ein Wohngeschoss aufgestockt. Inzwischen sind viele Räume ohne Genehmigung zu Wohnzwecken ausgebaut. Eine nachträgliche Legalisierung aller Wohnungen ist nicht möglich, weil die Grundstücke in einem Gewerbegebiet liegen. Das Flurstück 104 ist nur 6 m² groß und vollständig von einem Überbau belegt.
Lage & Flurstücke
Keine Koordinaten verfügbar
Escherweg 3, 51545 Waldbröl, Hermesdorf, Nordrhein-Westfalen
Kostenrechner
Kostenrechner für Zwangsversteigerungen
Objektdaten
Verkehrswert:258.015 €
Bundesland:Nordrhein-Westfalen
Grunderwerbsteuer:6,5 %
Ihre Eingaben
€
€
Rechtlicher Hinweis: Diese Berechnung dient ausschließlich der Orientierung und stellt keine rechtliche, steuerliche oder finanzielle Beratung dar. Alle Angaben erfolgen ohne Gewähr. Für eine verbindliche Auskunft wenden Sie sich bitte an einen Rechtsanwalt, Steuerberater oder Ihre Bank.