
Beschreibung
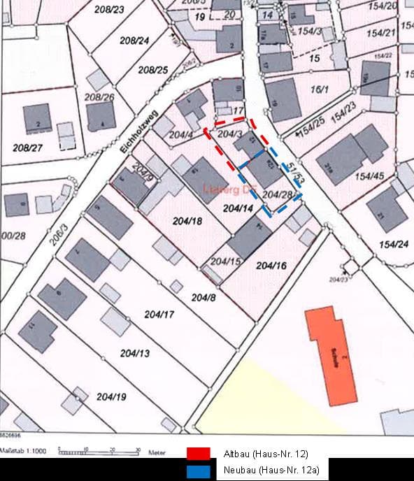
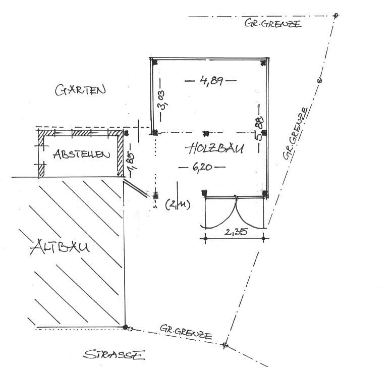
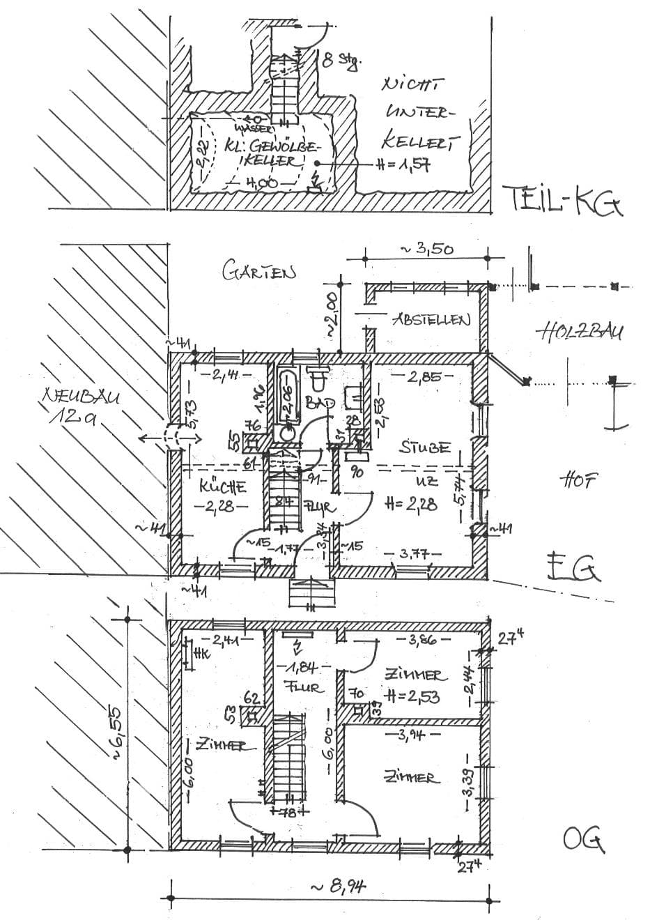
Lfd. Nr. 1 Objektbeschreibung/Lage (lt Angabe d. Sachverständigen): Einfamilienwohnanwesen (bezeichnet als Altbau) als rechte Doppelhaushälfte einschließlich Nebengebäude (mit Kfz-Einstellplatz sowie weitere Abstellflächen; Faserzementdacheindeckung der Nebengebäude vermutlich asbesthaltig) ; Baujahr unbekannt; deutlicher Instandhaltungs- und Sanierungsrückstau; ca. 117 m² Wohnfläche wirtschaftliche Einheit mit Flst. 204/28; Verkehrswert: 65.000,00 € Lfd. Nr. 2 Objektbeschreibung/Lage (lt Angabe d. Sachverständigen): Einfamilienwohnanwesen (bezeichnet als Neubau) als linke Doppelhaushälfte], nicht unterkellert; Baujahr ca. 2005, dem Alter entsprechender Zustand mit in einigen Bereichen noch ausstehenden Fertigstellungsrestarbeiten. Wohnfläche ca. 160 m² wirtschaftliche Einheit mit Flst. 204/3; Verkehrswert: 275.000,00 €
Lage & Flurstücke
Kasernstraße 12 u. 12a, 96170 Lisberg, Bayern