
Beschreibung
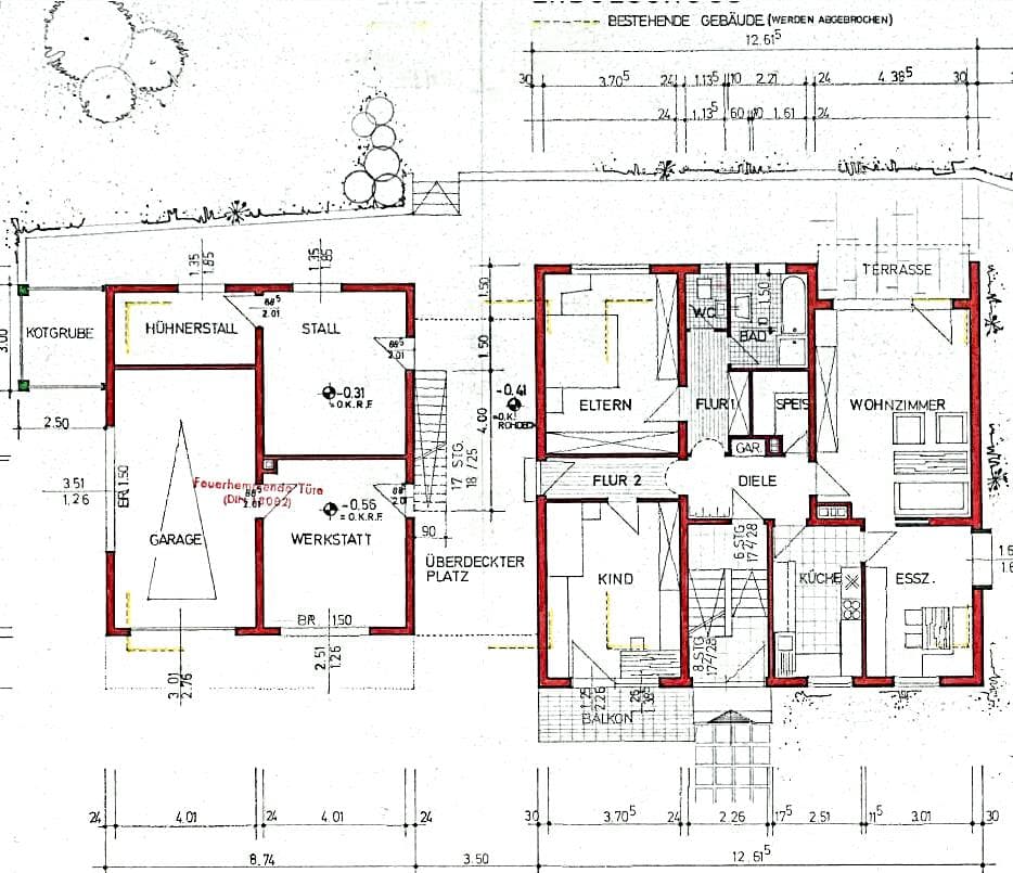
Lfd. Nr. 1 Objektbeschreibung/Lage (lt Angabe d. Sachverständigen): Wohnhaus (teilweise auf Flst. 77), Wirtschaftsgebäude (teilweise auf Flst. 77), Hofraum. KG, EG, OG, ausgebautes Dach. Baujahr 1971, Anbau 1992 (ohne baurechtliche Genehmigung). Wohnfläche ca. 339 qm, 3 Wohnngen, 1 leerstehend.; Lfd. Nr. 2 Objektbeschreibung/Lage (lt Angabe d. Sachverständigen): Garagen- und Lagergebäude. Teilweise als Viehstallgebäude zweckentfremdet. Ohne baurechtliche Genehmigung.; Lfd. Nr. 3 Objektbeschreibung/Lage (lt Angabe d. Sachverständigen): Lager- und Werkstattgebäude. Nutzfläche ca. 78 qm. Teilweise überbaut von Flst. 76.; Lfd. Nr. 4 Objektbeschreibung/Lage (lt Angabe d. Sachverständigen): Landwirtschaftsfläche im Außenbereich. Bewirtschaftet als Ackerland.;
Dokumente
Lage & Flurstücke
Weiherstraße 7, 91369 Wiesenthau, Bayern