
1 / 12
Beschreibung
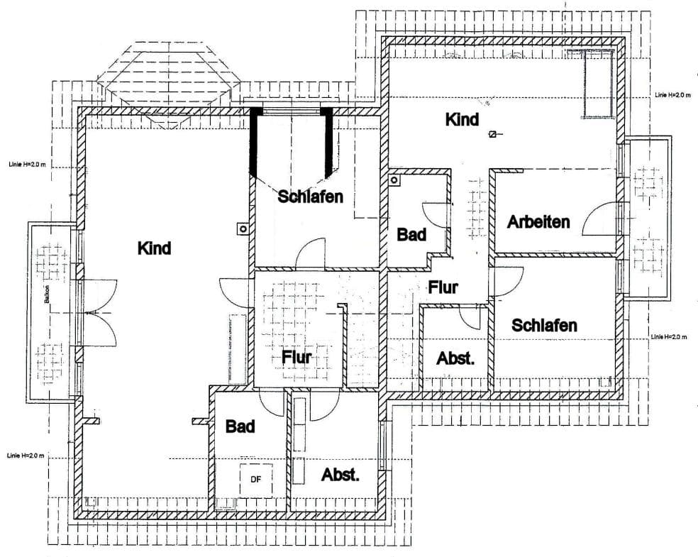
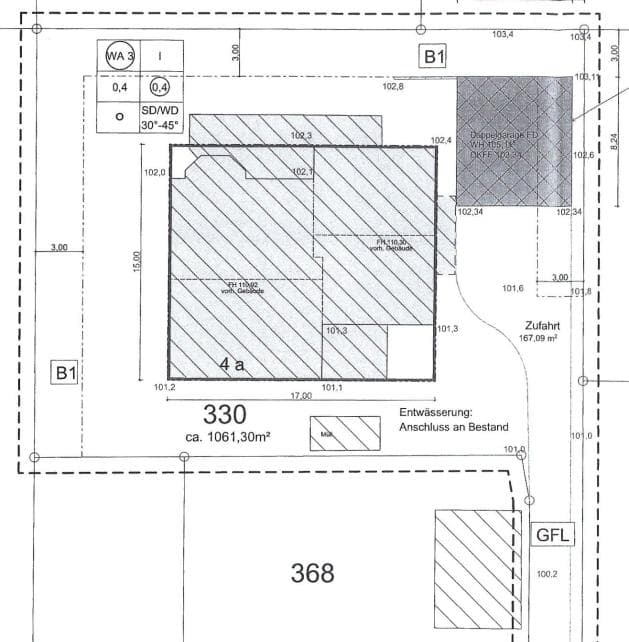
Laut Wertgutachten handelt es sich um ein rd. 1.100 qm großes Grundstück mit einem eingeschossigen 2005 fertig gestellten Wohnhaus mit ausgebautem Dachgeschoss in 51545 Waldbröl-Hermesdorf, Altengarten 4a. Es hat zwei Wohnungen und eine Wohnfläche von insgesamt rd. 380 qm. Das Haus ist nicht unterkellert. Das Zubehör (Kachelöfen, Sauna) und die Photovoltaikanlage erhöhen den Verkehrswert um 16.500 €.
Lage & Flurstücke
Keine Koordinaten verfügbar
Altengarten 4a, 51545 Waldbröl, Hermesdorf, Nordrhein-Westfalen
Kostenrechner
Kostenrechner für Zwangsversteigerungen
Objektdaten
Verkehrswert:612.000 €
Bundesland:Nordrhein-Westfalen
Grunderwerbsteuer:6,5 %
Ihre Eingaben
€
€
Rechtlicher Hinweis: Diese Berechnung dient ausschließlich der Orientierung und stellt keine rechtliche, steuerliche oder finanzielle Beratung dar. Alle Angaben erfolgen ohne Gewähr. Für eine verbindliche Auskunft wenden Sie sich bitte an einen Rechtsanwalt, Steuerberater oder Ihre Bank.