
1 / 32
Beschreibung
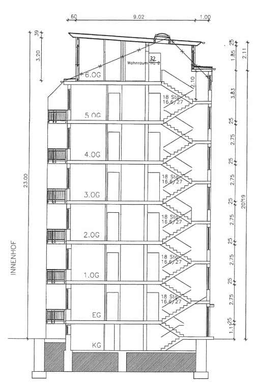
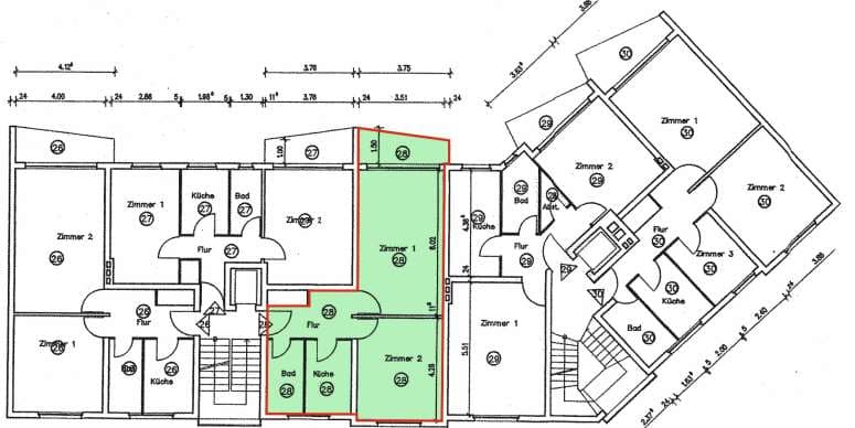
Eigentumswohnung Nr. 28 in der Hildegardstraße 18, 18A, 10715 Berlin. Die Wohnung liegt im Aufgang Hildegardstraße 18 A eines sechsgeschossigen Gebäudekomplexes, 5. Obergeschoss (rechts), und verfügt über 2 Zimmer, Balkon, Bad, Küche und Flur. Das Gebäude ist unterkellert; die Kellerverschläge stehen im Gemeinschaftseigentum. Das Objekt konnte durch den Gutachter von innen besichtigt werden. Weitere Einzelheiten können dem Gutachten entnommen werden (Stand: März 2025). Baujahr: ca. 1956, nur Teilsanierungen 2005, 2014, 2018 Wohnfläche: 52,94 m²
Dokumente
Lage & Flurstücke
Keine Koordinaten verfügbar
Hildegardstraße 18 A, 10715 Berlin, Berlin
Kostenrechner
Kostenrechner für Zwangsversteigerungen
Objektdaten
Verkehrswert:175.000 €
Bundesland:Berlin
Grunderwerbsteuer:6,0 %
Ihre Eingaben
€
€
Rechtlicher Hinweis: Diese Berechnung dient ausschließlich der Orientierung und stellt keine rechtliche, steuerliche oder finanzielle Beratung dar. Alle Angaben erfolgen ohne Gewähr. Für eine verbindliche Auskunft wenden Sie sich bitte an einen Rechtsanwalt, Steuerberater oder Ihre Bank.