
1 / 20
Beschreibung
"siehe amtliche Bekanntmachung"
Lage & Flurstücke
Keine Koordinaten verfügbar
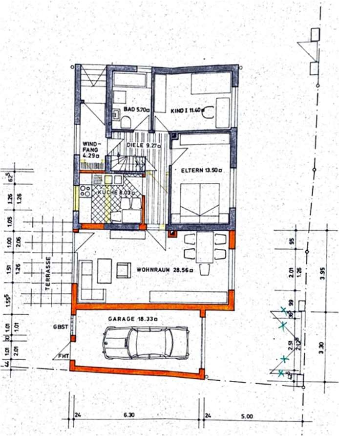
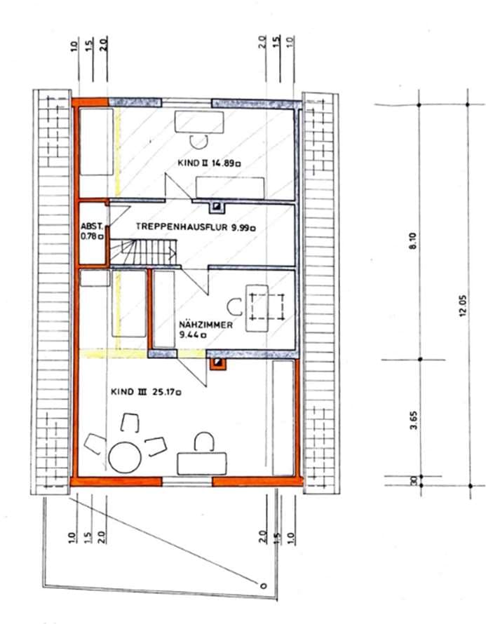
Tulpenstraße 4, 91217 Hersbruck, Bayern
Kostenrechner
Kostenrechner für Zwangsversteigerungen
Objektdaten
Verkehrswert:370.000 €
Bundesland:Bayern
Grunderwerbsteuer:3,5 %
Ihre Eingaben
€
€
Rechtlicher Hinweis: Diese Berechnung dient ausschließlich der Orientierung und stellt keine rechtliche, steuerliche oder finanzielle Beratung dar. Alle Angaben erfolgen ohne Gewähr. Für eine verbindliche Auskunft wenden Sie sich bitte an einen Rechtsanwalt, Steuerberater oder Ihre Bank.